Workshop
Ask a question

The Bunnings Workshop community can help with your home improvement projects.

Suggestions on kitchen designs for an awkward layout

JessMiller15
Getting Established

Suggestions on kitchen designs for an awkward layout

 

Hi all,

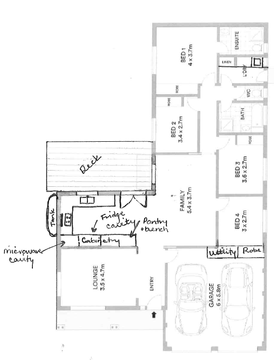
Looking for any advice or suggestions for our kitchen reno. The plan is to knock out the wall between the dining and kitchen areas and make one long galley style kitchen (by filling in the wall in between the current dining space and living room). The difficulty is that the two windows marked in blue are full length windows so we can't just use both full walls for the benches without changing the windows to half height. We would really like to avoid doing that as it will lead us down a rabbit hole of then trying to fill in gaps in the brick exterior or come up with a cladding style option for the whole exterior wall, which would just blow costs way out. Our thinking was that we could do one long bench along the back wall and then a shorter bench under the half height window, finishing just before the full length window starts. My concern is that it will look really strange and be a complete waste of space in the corner. Any suggestions on how to make the best use of this space would be so appreciated!

 

Kitchen and dining only - floorplan.PNGKitchen and dining only - floorplan2.PNG

Re: Looking for suggestions on kitchen designs in an awkard layout

Thank you so much for the amazing drawings @redracer01 I am always amazed at how quickly you are able to put together such fantastic design!

 

With regards to adding the wall, this is something we definitely want to do. We'd like to keep the kitchen and family/living spaces open but the lounge room separate. We have spent 12 months living in the house to get a feel for it and one of the things we found is that not being able to fully close off the front lounge room from the kitchen and living area is a real pain when we have had people over or wanted to do things in separate spaces.

 

The more I have reflected on it the more I see us needing to alter the windows to really make the best use of space and open the kitchen up to look bigger and have a more efficient footpath. I've done a rough sketch moving some windows and doors around that I think is just going to give us a better overall layout. This will also solve the problem we've had with where the sliding door is now in the family living area, as having a walkway and exit there limited how we could place couches and furniture in that area and made it a little less functional. If we continue to use the sliding door in the new location for the meantime and save up to add a proper timber French door down the track this change should only add about $1,000 in terms of new windows and external cladding, so I think it's probably worth the expense to get the best design.  

 

I've been having a look at the James Hardie weatherboard exterior cladding available at Bunnings and it looks quite nice from the picture, but I would really appreciate advice from anyone who has used this product.

 

   Updated house design.PNG

 

Re: Looking for suggestions on kitchen designs in an awkard layout

Hello @JessMiller15 

 

I see what your aiming for. Let me amend your drawing to reflect your plans. I will post as soon as I can.

 

Red


I am a Bunnings team member. Any opinions or recommendations shared here are my own and do not necessarily represent those of Bunnings. Visit the Bunnings website for assistance from the customer service team.


Re: Looking for suggestions on kitchen designs in an awkard layout

Hello @JessMiller15 

 

Here are your amended drawings. I had some spare doors lying around so I used it as your french doors. I see you've indicated on your plans for a possible laundry make over and possibly some garage storage as well? Drop us a line if you wish to see some renders for these areas, I do have some nice ideas for laundries in my last few posts. Enjoy the drawings and please drop us a line here at Bunnings Workshop if you have any other questions.

 

Red

 

JessMiller Kitchen1A.jpgJessMiller Kitchen2A.jpgJessMiller Kitchen3A.jpgJessMiller Kitchen4A.jpgJessMiller Kitchen5A.jpgJessMiller Kitchen6A.jpgJessMiller Kitchen7A.jpgJessMiller Kitchen8A.jpg


I am a Bunnings team member. Any opinions or recommendations shared here are my own and do not necessarily represent those of Bunnings. Visit the Bunnings website for assistance from the customer service team.


Re: Looking for suggestions on kitchen designs in an awkard layout

Thank you for the drawings Red, they are AMAZING! Exactly what I was thinking. 

Re: Looking for suggestions on kitchen designs in an awkard layout

nice work @redracer01 

@JessMiller15  on another plan that Red did he suggested altering the oven/microwave tower to site the oven lower--I suggest you seriously consider that. When I reno'd my kitchen, the tower I used has the oven at about 700mm above the floor & the m/wave above it at about 1300mm from the floor. I'm 184cm & the m/wave is at a good, usable height for me--just above elbow height. I have my forearms about 50mm above horizontal to put things into &, more importantly, to safely take things out, especially hot dishes.

 

A couple of minor suggestions to ponder:

  • swap the position of the fridge & pantry to keep the fridge away from the oven heat altho may not be as big an issue with a good insulated oven.
  • move the overhead cupboards from the end wall to replace the shelves on the RHS wall and put 2 high set windows along the back wall either side of the exhaust fan--that'll let more light in & give ppl in the kitchen another view to the outside. I'm also not in favour of (too many) open shelves--IMO, they collect dust, are not as efficient for storage, and can look messy. Moving the end wall cupboards may make the layout look less busy (limited items on the back wall) & I think windows will draw the eyes along the length of the galley making it seem bigger.
  • Maybe consider a glass hood canopy for the exhaust fan to further reduce the visual mass on the wall--here's a post showing my glass range hood

Cheers, Peter

Re: Looking for suggestions on kitchen designs in an awkard layout

Hello @pete_brig 

 

Thanks for the shout @pete_brig! I still have that drawing from that design. I recall she wanted the microwave low enough so that she does not have to extend her arms past her shoulders. If you ever decide to go in that direction @JessMiller15 below is a drawing of what pete suggested.

 

Cheers,

Red

 

oven tower1.jpg


I am a Bunnings team member. Any opinions or recommendations shared here are my own and do not necessarily represent those of Bunnings. Visit the Bunnings website for assistance from the customer service team.


Why join the Bunnings Workshop community?

Workshop is a friendly place to learn, get ideas and find inspiration for your home improvement projects