Hi all,
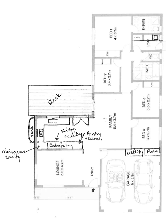
After getting such wonderful input on our kitchen plans I thought I'd throw out to the community again. One of the things we are toying with is whether there is any capacity to fit a WIR in our master bedroom. It's more of a 'nice to have' rather than 'must have but it seems to add a bit to the resale price. There may be some scope to change the layout of the laundry and ensuite to fit this but not sure if we are just trying to fit too much in and would end end up with small squished spaces, a lot of work and not much payoff. Any thoughts on whether it may be possible to incorporate this would be great!
