To create an inviting area for outdoor entertaining, a new deck was added with planter boxes and bench seating for less than $2,000.

The plan
I built my first home – a modest block of land with a nice, affordable and maintainable three bedroom house on the block. As a small block, the space provided for the backyard was never going to be incredibly ample, in fact it's rather small.
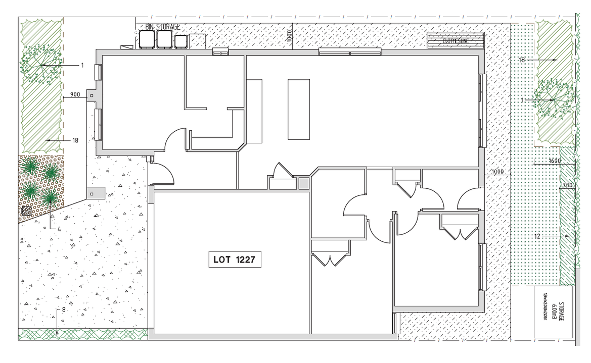
From the outset, I was given the below plans which highlighted the size of the backyard and the landscaping that would be provided.

The plans themselves made the space look somewhat decent, but the reality is that the garden is about 12m x 2.5m with a 1m wide concrete path going around the perimeter of the home. It doesn't offer the greatest space for entertaining, and the landscaping provided left a lot to the imagination. The view from the living room doesn't exactly scream "Come out and enjoy the outdoors!"

So it came time to start planning a way to rejig this space and transform it into a liveable area that I would enjoy spending time. My other concern was purely around budget. As I'm currently in this home on a single income, any transformation that occurred had to be done the old fashioned D.I.Y. way. A lot of my loftier ideas were quickly nixed, and my expectations became a bit more measured.
My father has built many a deck and pergola in his time, and my plans started to lean towards a nice decked area that wouldn't require a lot of maintenance yet would transform the space into an entertaining area as an extension of the living room.

The plan is to completely deck the backyard area and build up some nice large planter boxes to keep a bit of the green in the backyard and provide some bench seating of their own.
The project
The first thing we started to do in the backyard was paint the fences. It's a Colorbond colour called Woodland Grey that I got tinted into a Dulux product. I decided to paint as much of the fencing around the deck as we can so that while Dad and I are busy working on my deck, the rest of my family can chip in with painting the remainder of the fence.
I'm pretty happy with the result so far and once the deck is complete I think this whole space will fit in with the overall look and feel of the house. I also discovered that when your paint sprayer refuses to work using a roller and a brush to do a fence is some nice long work.

We decided to put the planter boxes in first as it will provide us with the basis for our deck height – and it's a place for us to put all of the dirt and soil we will be digging out of the existing garden. At this stage we've only used treated pine sleepers, but we plan to clad the boxes with decking and also use the decking to create the bench seating on the planters.
Digging the trenches for the planter boxes was not enjoyable and it's looking like a working bee will need to be organised when it comes time to dig out the rest of the garden.

A few issues have come up since the dig – we've realised that we are going to have to put a retaining wall in place on the back fence as we had to dig fairly deep there so the retaining wall will not only supply some much needed support to that side of the fence, but also ensure a much cleaner look than a wall of dirt.
I decided to salvage the olive tree and some drought tolerant shrubs for one of the boxes as I haven't been great with keeping plants alive in the past. I plan on putting a few lemon and lime trees in the other box once we have everything settled in the backyard.

Levelling off the deck took forever, no matter how close we got to thinking we were done, we discovered we needed to take off more.

But once we got the space ready, we were able to crack on and start smashing through the creation of the deck. The joists were an utter joy to work with as we quickly realised how my entire block was hardly square. The project stalled significantly here, my old man and I really wanted to make sure that the deck was perfectly level. So a lot of time and patience was spent on getting this right.
After many weeks and frayed tempers, the deck started taking shape and we could see the end in sight.

With the deck finally laid out and completed, it was time to think about the final touches. We used quite a lot of treated pine sleepers throughout the backyard to help frame the space and build the planter boxes on each side of the deck. I felt like these clashed with the new deck and were also not square with the deck due to the slope of the block.
Luckily we had estimated generously for this project and had a lot of spare timber, so we set about cladding over every sleeper in the yard. I have to say, I'm pretty happy with the result as it tied the whole space together nicely.
I foolishly requested that these boxes have some nice joinery, which easily added a day's worth of work as two D.I.Y.ers attempted to become carpenters. The result in pictures is fantastic, but up close some of our joins are less than ideal. I may come back to these planter boxes in the future, but for now I think the stain hides a lot of the imperfections.

When staining 40m2 of deck you expect it to take some time, but it still took longer than we expected. Being in direct sun, we were racing the clock to get everything done in the early morning, otherwise the stain dried up almost instantly. After two days, both coats are down and the deck/beer garden is looking fantastic.
I'll be spending my evenings with a nice small brush staining the sides of each decking board. We discovered after it all dried that the lambswool wasn't doing much for the sides of the boards, so the perfectionist in me will spend some time meticulously going over each board.
At the end of the project, we were shy of just $2,000 spent on the whole backyard. For anyone else wanting to give this a go, I suggest sitting down and drawing out what you are planning to do as it was helpful to refer back to those basic plans whenever we were trying to work something out, and it gave us a clear goal to hit.
Before and after


How to plan a garden makeover
Horticulturalist and experienced Bunnings Workshop member Adam Woodhams has shared a comprehensive guide to planning your own garden makeover, as well as providing advice on next steps once you're ready to get on the tools.