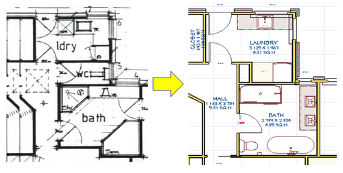
The original laundry in our house like most 70's builds was small and not designed for modern appliances and functionality. One of my biggest design annoyances in any home is the wasted space of a dedicated toilet (WC) room. Typically 75% of the 1m x 2.4m is dead space. Fortunately the WC was next to the laundry so, I was able to steal that space and relocate the toilet in to the main bathroom, which was about to get a full rebuild.
In the plans below you can see the original layout and what the changes were going to be to both the bathroom and the laundry and how I was going to gain valuable space by relocating the toilet. By doing so I was able to incorporate an inbuilt laundry cupboard, stacked cavity for there washer and drier and a linen closet in the hallway.
Here's how it was done...
Before
The plans
Before and After Plans
Materials
Plasterboard
90mm x 35mm structural pine
Tile underlay
Tile brads
600 x 600 tiles
Kaboodle laundry cabinets
Wall mounted clothes hangers
Dorf top mounted sink and mixer with pullout spray
Dulux One-prep undercoat
Dulux wash and wear wall paint
Tools
Reciprocating saw
Impact driver
Mitre saw
Drill/driver
Jigsaw
Steps
Step 1
The first step was the demolition of both the laundry and WC. I was able to remove the dividing wall since my roof war truss constructed which, is a deciding factor in buying any house I intent to renovate.
Both windows were replaced with new colorbond awnings.

Step 2
While I had the plasterboard off I had the plumbing reconfigured and had the powerpoints relocated.
The toilet window was replaced with a fixed frosted glass as it was going to be covered completely on the inside. But from the outside nobody would be the wiser.
I fitted new plasterboard and stopped it up



Step 3
I did final measurements and ordered the kaboodle laundry cabinetry. While waiting for the delivery I laid the tile floor. I didn't allow for the appliance nook, so I had to use offcuts under the cabinet to help level the carcus's. 🙄


Step 4
I needed to save money to have stone benchtops in there bathroom, ensuite and kitchen, so I went with a timber bamboo top for the laundry. In hindsight I should have spent the extra on the stone as timber is not that durable for a laundry application.


Step 5
I used the offcuts from the bench to make a couple of shelves in the nook for the laundry basket and dryer.
My wife found these great wall-mounted pull-out clothes hanger racks for drying shirts which, tuck neatly out of the way when not in use.


Step 6
The last steps were to tile the backsplash, and paint the walls and ceiling as well as the timber bench top.
I also replace the old timber door with a new double glazed one.


Step 7
The entire project took about 2 weeks, but here's a time-lapse video showing everything in less than 2min.