Hello everyone,
I'm new to the community and this would be my first ever renovation project. 🙂
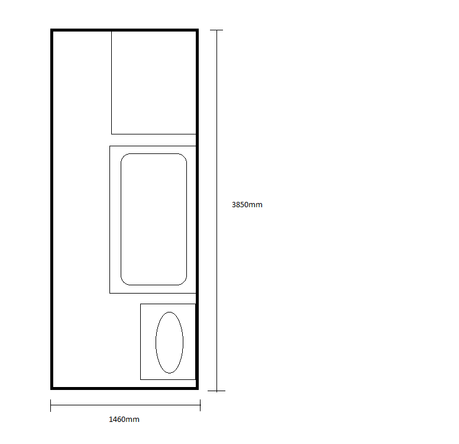
I'm currently looking to remodel my bathroom. It is a really long but narrow space, it is around 3.9m (length) x 1.3m (width) - see the floor plan and photo below.
Really keen to get some ideas/suggestions on the new bathroom layout as I would like to fit a toilet somewhere, and ideally I would still want to keep a separate shower and bath. I have a couple of ideas but not sure if it will work.
Idea 1: Similar to the current layout, but reduce the size of the shower space and vanity, move the bathtub closer to the shower to create extra space to fit in a toilet between the bath and the new vanity?
Idea 2: Replace the shower area with a toilet, and replace the bath with a bath and shower combo in the current space.
Idea 3: Replace the shower area at the end of the room with a round bathtub (as I don't think there would be enough space to fit in a proper bathtub horizontally) with a shower combo, and fit in a toilet between that and the vanity.
Thanks in advance!
(length)
