The Bunnings Workshop community can help with your home improvement projects.
Hi everyone,
First time DIY-er here! My husband and I bought our first home in December 2021 and the previous owners were an elderly couple who didn't do a lot of maintenance to the house.
I'd like to start off by tackling the very basic laundry. It's a pretty good size but all it has in it is a small laundry tub that doesn't even fit a regular mop bucket in it!
Other than that, I want to add some storage for cleaning products and pet items to free up space in our small kitchen so we can eventually put a dishwasher in the kitchen.
The one tricky thing about the laundry is that the pantry (and mop, broom, etc., storage) is in there because there's no room in the kitchen. So space is sacrificed because there has to be clearance for the doors to open. I was thinking about changing the doors to a barn door, but is this suitable for a pantry (moisture, etc.?)
So, my must-haves are:
I'd really appreciate any tips, tricks or suggestions that anyone has for me ![]()
Thanks!
Hello @tkirk
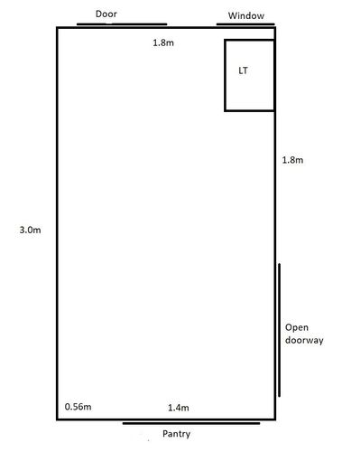
Welcome to the Bunnings Workshop community. I suggest having a look at this guide - How to plan a laundry renovation by Adam_W. It should give you the basics of how to plan it out. I've drawn you up some ideas and you'll notice that we can't bring the pantries all the way to the end as we need to have some space for the door to swing open.
I suggest using the Abey 600 x 500mm 45L Inset Laundry Tub it's one of the biggest tubs that will fit a Kaboodle 600mm Base Cabinet. Just a reminder that you must be extremely precise when cutting the drop in hole for the laundry tub. You can bring this sketch to any Bunnings store with an In-store kitchen specialist. They'll be able to quote the laundry for you.
Please have a look at the drawings and tell me what you think. If you wish to see it in another configuration, please let me know. I'll be more than happy to re-arrange it for you.
Eric





Workshop is a friendly place to learn, get ideas and find inspiration for your home improvement projects
We would love to help with your project.
Join the Bunnings Workshop community today to ask questions and get advice.