Workshop
Ask a question

The Bunnings Workshop community can help with your home improvement projects.

Can bathroom and laundry waste pipes be placed inside drywall?

wendalls
Growing in Experience

Can bathroom and laundry waste pipes be placed inside drywall?

We would like to consider updating our single bathroom and laundry area by reconfiguring into an ensuite plus main bathroom and laundry. We are in an apartment, second floor.

As I have been researching I realised that drilling new waste trenches seems expensive and noisy and rather a large undertaking. However I am now wondering whether it's possible to direct waste along the length of dry wall (since we'll be pulling down all the existing and reconfiguring) and directing down existing waste pipes. Eliminating the need for drilling into the slab.

 

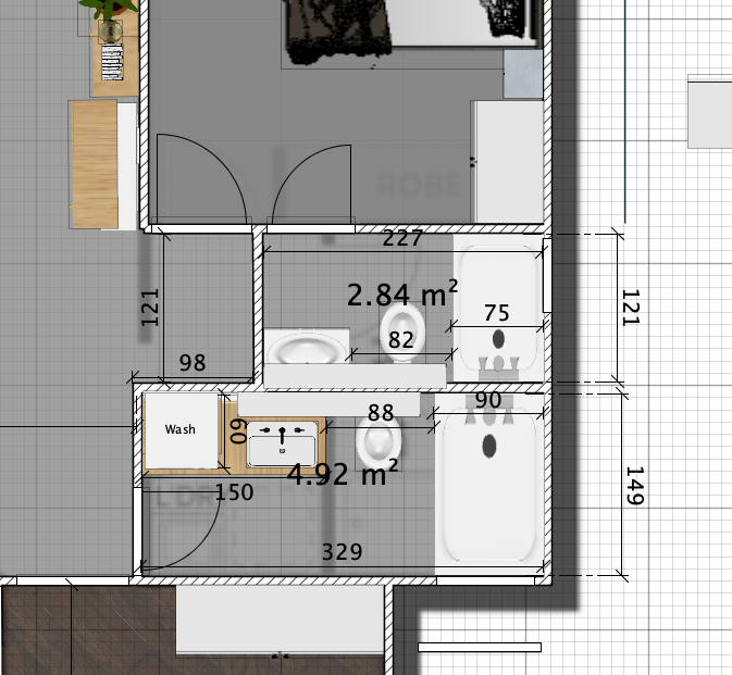
Here is a before floor plan, and a suggested after. We know both bathrooms are cutting fine in sizing. Therefore we are also considering main bathroom and powder room / laundry, or doing nothing at all and keeping as is, though getting an ensuite in could be good for future rental potential.

NB in the floor plans the showers look like baths but will be showers with glass partition.

 

Screen Shot 2020-09-10 at 5.57.53 pm.png

Bathroom floor plan.png

MitchellMc
Bunnings Team Member
Bunnings Team Member

Re: Can bathroom and laundry waste pipes be placed inside drywall?

Hi @wendalls,

 

I believe there is no reason why you can't have the waste pipes from the sink inside the cavity. You builder will need to accommodate them whilst constructing the wall. An issue that will arise is I suspect that there might not be enough width in a 90mm stud to accommodate wastes from the toilets. The other issue to be aware of are the regulations on how far a waste pipe can run without a vent and a plumber will be able to tell you whether your plan is feasible.

 

You might like to consider building the pipes on the outside of the wall. These can then be encapsulated in plaster and boxed in. They can make an attractive addition to the room if done well and provide ledges and shelves for storage and display items.

 

Let me mention @redracer01 to see if he would like to join the conversation on the positioning of fixtures when running through the slab is not an option.

 

Mitchell

 

See something interesting? Give it the thumbs up!
wendalls
Growing in Experience

Re: Can bathroom and laundry waste pipes be placed inside drywall?

@MitchellMc  and @redracer01  Thanks so much! Looking forward to figuring out if this is possible...

Why join the Bunnings Workshop community?

Workshop is a friendly place to learn, get ideas and find inspiration for your home improvement projects