Workshop
Ask a question

The Bunnings Workshop community can help with your home improvement projects.

How to turn a laundry to bedroom?

danyopan
Just Starting Out

How to turn a laundry to bedroom?

IMG_4102.png

IMG_4101.jpeg

IMG_4069.jpeg

Hi team!

 

I love reading your advice and ideas with others in the community, and I have an idea for a renovation of my house that I would love to hear your idea on it.

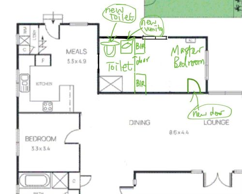
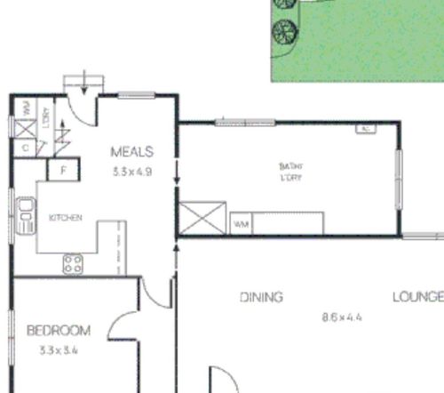
I have an unused laundry/ shower room in my house that I want to turn into a bedroom with en-suite. The room already has shower and laundry so there are water supply and outlet, and exhaust fan. I plan to open up a new door, likely loading wall, to make a more logical entrance and add a stud wall within the room to separate out the en-suite. I will need to add a toilet inside.

What do you think of the design? Any area of improvement? I’m new to renovation and it seems quite nonstandard job, how should I begin looking for trades to do it. 

(The window location is correct in the mark up drawing so there’s no need to relocate the window)

Thanks!

Dan

EricL
Bunnings Team Member
Bunnings Team Member

Re: How to turn a laundry to bedroom?

Hello @danyopan 

 

Welcome to the Bunnings Workshop community. It's sensational to have you join us, and thanks for sharing your question about your laundry room.

 

Your proposed lay out looks very good, I suggest keeping the two wardrobes together and move the bathroom door to the other end. In this manner the light from the bathroom will not shine directly on the bed and avoid waking up anyone else sleeping on the bed. I also recommend using cavity sliding doors to maximize the use of space in both the bathroom and bedroom. My number one suggestion is to make sure to install a heat/fan/light combination appliance in your bathroom for effective ventilation.

 

Let me call on our experienced members @Dave-1, @AlanM52 and @Nailbag for their recommendations.

 

If you need further assistance, please let us know.

 

Eric

  

See something interesting? Give it the thumbs up!
Nailbag
Home Improvement Guru

Re: How to turn a laundry to bedroom?

Hi @danyopan 

 

On the surface it all looks very doable, though there will be added costs/complication should the house be built on a slab. If it's on stumps with plenty of under-floor access then the project will be fairly straight forward. 

 

You're most likely going to need a builder permits and plans drawn up etc. So, since you're intending to get this professionally built, I would look for a local registered builder who can offer a turn-key solution in renovations. They would be able to provide all the services from start to finish.

Nailbag

Dave-1
Community Megastar

Re: How to turn a laundry to bedroom?

Good morning @danyopan 

I was trying to see the dimensions of the existing laundry but they blur when I expand the pic. 

Going by the size of the other rooms you may find one side a little short for a bedroom. (Far wall with the two smaller windows.)

 

Have you drawn it to scale and then placed the queen sized bed into the room to see how much space there will be to move around plus bedside chests or dressing tables? I find it helps me "see" it a lot clearer.

 

I would find a builder, check them out on their/local social media page and see what people say and how they react with issues. Once you find a builder and have a quote and happy with what they are like, ask them for other trade recomendations. Then check their pages online. 

 

As A scale, you pay for what you get. The cheapest is cheap for a reason, the dearest, well it depends. Somewhere mid range is generally what I look for in a quote. Getting three quotes may take some time so be prepared to wait a few months for the quotes alone is another factor to consider.

 

Dave

 

AlanM52
Amassing an Audience

Re: How to turn a laundry to bedroom?

Hi @danyopan,

 

I agree with @Nailbag and would get a couple of builders to scope the project.

 

Cheers

 

Why join the Bunnings Workshop community?

Workshop is a friendly place to learn, get ideas and find inspiration for your home improvement projects