Workshop
Ask a question

The Bunnings Workshop community can help with your home improvement projects.

Custom timber bread box with roll door

ramoncarreon
Cultivating a Following
ramoncarreon
ramoncarreon
Cultivating a Following

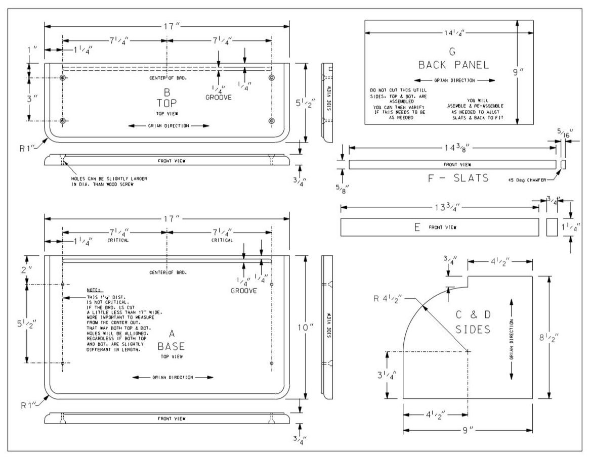
This custom timber bread box project includes plans so you can create it yourself.

 

 

bread box.png

 

The project

 

I built this custom bread box for a friend as a house warming gift. I used Pine to build this but hardwood (especially for the door slats) would be better because it will fall on its own due to the added weight.

 

How to build a bread box

 

My Dad sent me these plans from the States. You can either scale the measurements or use a measuring tool that has both types.

 

FD412742-AC0A-428A-9222-92DDAE9BC408.jpeg

19414AB9-2B4A-4671-A464-9C8B10D200E3.jpeg

 

Why join the Bunnings Workshop community?

Workshop is a friendly place to learn, get ideas and find inspiration for your home improvement projects