Hi ! we have water seeping through concrete in our under house garage after heavy rains.
I can’t see any visible cracks in the wall and it looks like the water is seeping / permeating / weeping through the solid concrete.
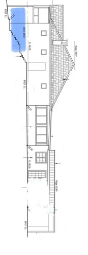
We are on a sloping block with the garage under our living room on the low side (north side) of the block (see blue highlights on the picture for location). The leak is on the south garage wall, which is under ground and covered by the rest of our house. There are French drains installed on the surface at the edge of the house on the high side ( south side)
Any thoughts on
1) whether this will cause structural damage the concrete wall?
2) how to remedy this?

