Workshop
Ask a question

The Bunnings Workshop community can help with your home improvement projects.

Want feedback on landscaping ideas

newbeginner
Growing in Experience

Want feedback on landscaping ideas

Hi

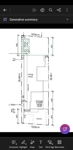
I'm after ideas from the brains trust.

My idea is to do the following on the attached plan

*Lawn area on rear RHS

* rainwater tank is going far right of the rear 

*Sunken lawn shopping down from paving to about 300 deep at the rear

*Retained garden beds using corten steel. *Double layered. 150 front and 300 rear so top  garden bed is actually at ground level

*Espaliered fruit trees in top needs with perennials in lower garden bed

*Open steel and wire pergola facing west with deciduous fast growing flowering climbers

 

1000020896.jpg

Courtyard

Water feature with back lit laser  cut screens 

Fire pit between water feature and house

North facing do vergola overhead

Front

A small diverted path to the front door with mounded soil either side planned with forest birch trees

MitchellMc
Bunnings Team Member
Bunnings Team Member

Re: Want feedback on landscaping ideas

Hi @newbeginner,

 

It sounds like you’ve put a lot of thought into your landscaping design, and your ideas all sound fantastic. However, since none of these features are currently shown on your plan, it’s a bit tricky to provide specific advice on placement. You might like to update your plan to include these elements, which would allow other members to give more targeted feedback on how everything fits together.

 

As a general note, your combination of sunken lawn, corten steel retained garden beds, espaliered fruit trees, and a pergola with fast-growing climbers should create a great balance of structure and greenery. One thing to consider is ensuring good drainage for the sunken lawn, especially if you’re in an area prone to heavy rain. Also, depending on the width of your garden beds, make sure there’s enough space for the perennials to thrive without competing too much with the fruit trees.

 

For planning, you might find Gardena’s myGarden planner helpful. While it’s mainly for designing irrigation systems, it works well for setting out landscaping designs and can help you visualise how all the elements will work together and if any adjustments are needed. 

 

You might like to check out these landscaping projects on the Bunnings website. Also, here's an excellent guide on How to plan & landscape a garden makeover.

 

Please let me know if you have any questions.

 

Mitchell

 

See something interesting? Give it the thumbs up!

Why join the Bunnings Workshop community?

Workshop is a friendly place to learn, get ideas and find inspiration for your home improvement projects