The Bunnings Workshop community can help with your home improvement projects.
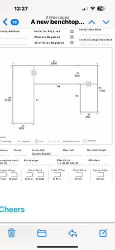
do Bunnings make or cut Benchtop that would fit this plan?
Hi @Freedom54,
Thank you for your question and welcome to the Bunnings Workshop community, it is fantastic to have you with us.
Unfortunately, Bunnings doesn't cut benchtops, but they can certainly be ordered to size.
You might like to check out the range from Kaboodle and Think Benchtops as options that can be made to measure.
My suggestion is to head into your local store with your benchtop plan and see the team at the Special Orders desk. They will be able to assist you with ordering benchtops that are made to measure.
Let me know if you have any further questions.
Jacob
Hi @Freedom54,
I thought I'd add that you might like to take advantage of our Custom Benchtop Installation offer. Once you've chosen your benchtop style and arranged a measurement and quote through the Special Orders desk, an experienced installer will visit your home for the measurement and quote. They'll then install the benchtop once it arrives.
If you were planning a full kitchen renovation, it would also be worth looking at our In-Home kitchen design consultation service and installation service.
Please let me know if you have any questions.
Mitchell
Workshop is a friendly place to learn, get ideas and find inspiration for your home improvement projects
We would love to help with your project.
Join the Bunnings Workshop community today to ask questions and get advice.