Workshop
Ask a question

The Bunnings Workshop community can help with your home improvement projects.

Itai's Reno - Kitchen

Itai
Becoming a Leader

Itai's Reno - Kitchen

Hi All.


On everyone's advice, as I go, I'm going to break out my giant post into individual posts - starting with the Kitchen.

I've already received some great advice from everyone and some interesting designs from @redracer01 over here: https://www.workshop.com.au/t5/Whole-of-House/Ideas-tips-and-advice-for-home-reno/td-p/32525/page/2

So, thank you so far :smile:

 

I'm open to receiving all sorts of ideas, though if we decide to break down the wall between the lounge and kitchen, that area will probably be where our dining room table is. The spot to the left of the kitchen is currently a 1.8m window, which I'm thinking of converting to a sliding door. However, maybe I don't and instead extend the kitchen along that line to the other wall. That would give us a ton more space while not totally losing the windows? But that means access to the future deck area would only be via the laundry (which we will make look nice :smile: )

 

Here are some reference photos of the current kitchen layout and the floor plans:

IMG-20191002-WA0010.jpgIMG-20191002-WA0011.jpgIMG-20191002-WA0020.jpgIMG-20191003-WA0004 copy.jpg

 

I'll put what I'm thinking in a separate reply to avoid confusion :smile:

Regards

 

Itai

Itai
Becoming a Leader

Re: Itai's Reno - Kitchen

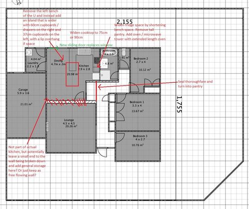
And here we go. My current thoughts on the kitchen.

Kitchen idea.jpg
What do you guys think in terms of effective use of space.

By closing that thoroughfare, am I severely limiting the functionality of the house, by making it that you can only get to the kitchen via the lounge? Is that a bad design idea?
(I'm hoping to shorten that wall between the lounge and corridor so you don't have to walk as far down. Depends if it is structural or not).
Is it worth removing the thoroughfare for that huge addition of space. Will it make the corridor feel smaller and darker? If I do close it, I could potentially inset the close a little to create some nice floating shelves to make the corridor feel bigger. If I do that, is it still worth creating that space in the first place.

 

Alternatively. I could potentially not create that sliding door (in green) and instead extend the kitchen right down that whole line (adding almost 2 meters of benchtop space). Then I can keep the thoroughfare as such, but i'd lose the ability to make that a door. I'd then probably make an island in a horizontal rather than vertical direction. But access to outside would then only be via the laundry.

 

Edit: In the design above, we could also make the island like the one in green below:

Capture.PNG


Thanks

Regards

Itai

Itai
Becoming a Leader

Re: Itai's Reno - Kitchen

Hey All. I've been playing around with the Bunnings Kaboodle designer to get an idea of what I might do with the space. What do you think of these two layouts (a G layout and a Island layout)
Please note there is a door on that smooth wall perpendicular to the pantry (or stove in G kitchen). There is also not going to be a wall directly opposite the cooktops even though there is one in the designs (with the tiles all over it). It will open into the dining / lounge area as per the floor plan in the first second post.

G Layout:
Offers around 0.2 cubic meters more space (around the size of a dishwasher space)
Gives around 10cm more space between left wall and counter top to get through to the back sliding door. (around 1 - 1.1m)

 

G Kitchen 2.PNGG Kitchen.PNG

Island Layout:
There will also be 30cm deep cupboards on the front of the island. Just the bunnings builder didn't give me this option. I will still have a 30cm overhang.
Gives around 0.9m between the left wall and counter top (around 0.9m - 1m) (If we manage to push back the wall by the pantry, then I can move the island further over and open this space a bit. That won't apply to the G shape kitchen).

 

Island Kitchen 2.PNGIsland Kitchen.PNG

Would love to know your thoughts. Currently, our gas cooktop is where the fridge is in these photos. But we will be installing induction instead.

 

Also, any recommendations for good quality flat pack kitchen companies that can also do some customization? I've heard there's lots of good ones that are priced similarly to bunnings / Ikea, but are better quality. 

 

And is 2-pac painting the way to go?

 

Thanks

 

Regards

Itai

Itai
Becoming a Leader

Re: Itai's Reno - Kitchen

Hey all

Any tips on kitchen provider? I've looked at Ikea, Kaboodle and then there's a few other flatpack makers:
Kitchenshack - they deliver fooly assembled units
Kinsman Kitchens
https://uplifekitchens.com.au/
https://goflatpacks.com.au/
https://www.thebluespace.com.au/pages/kitchen-cabinets-online

Those last 2 would be online ordering.
An advantage to goflatpacks.com.au is they are custom made, so I can choose custom sizes.

Of course price is another issue, if they are wildly different, I will look at that too.

I'm planning to get a 2pac satin finish for the doors.

Any other recommendations?
redracer01
Kind of a Big Deal

Re: Itai's Reno - Kitchen

My suggestion is of course Kaboodle! 18mm panels all around, traditional dowel and screw assembly. It will not shear, loosen or sag like cam-lock or push clip type systems. Does not need special angle brackets to hold it to the wall. You can directly screw the cabinet to the wall and is structurally sound. It can take the weight of both 20 and 40 mm edge stone tops. Good color choice in the range. I suggest gloss finish and vacuum laminated doors so that its easy to clean is tough and can withstand attacks from small humans, satin tends to hold dirt from dusty and greasy fingers ( don;t let me stop you if you really like satin! ). If your thinking of solid or engineered tops and timber bench tops, I strongly suggest THINK bench tops! Repairable, easy to maintain and is used in both domestic and commercial applications. Let me answer that last question on your last post. 2 pac is great if it can be maintained, difficult to repair and replace. Vacuum laminated doors gives you the look of 2 pack but is about 100 times tougher. Easy to replace and no paint matching required. Oh and my vote is for the stand alone island, it seems to me the G shape just takes so much space and everything becomes crowded in the corner where the blind corner pantry is.

 


I am a Bunnings team member. Any opinions or recommendations shared here are my own and do not necessarily represent those of Bunnings. Visit the Bunnings website for assistance from the customer service team.


redracer01
Kind of a Big Deal

Re: Itai's Reno - Kitchen

Hello @Itai I was looking at your drawing and wanted to confirm sizes. The usual distance allowed between base cabinets and island is 1 meter. It is not a fixed rule but is usually recommended by designers to allow easy passage between two people in the kitchen.

1. Is the distance where the pantry, fridge and oven tower 2200mm not including the cabinets near the window which is 600mm. Does that space in total equal 2800mm? or is there more space?

2. How big did you make your island on the kaboodle kitchen designer?

I just wanted to confirm the sizes perhaps I can make more suggestions to your current set up of the cabinets. Please correct me if the sizes are incorrect.

 

Cheers!

 

The island size is based on the benchtop size which is 1876 x 900 x 40 this includes overhangs.The island size is based on the benchtop size which is 1876 x 900 x 40 this includes overhangs.

 


I am a Bunnings team member. Any opinions or recommendations shared here are my own and do not necessarily represent those of Bunnings. Visit the Bunnings website for assistance from the customer service team.


Re: Itai's Reno - Kitchen

Hey @redracer01 Thanks for the advice.

So you aren't a fan of the higher end Ikea stuff? Asking because their drawer / size options seem to be the easiest to work with + they have a billion accessories for them. But for example, I really like the pantries with drawers and for the island cooktop, the base cabinet with 8 slim line drawers to keep my spices, utensils and foil, etc really nicely organised. I couldn't seem to find these similar things in Kaboodle.

 

For the measurements, I've been working off not less than 1m between island and anything else, except for that passage door. However, I think we've decided to open that right up to give flexibility in layout (i.e. it's really painful to have a door / fridge door right up against that wall which poked out 1.26m. Below are the layouts with dimensions. Ceiling is 2.4m.

 

Kitchen DimensionsKitchen Dimensions

Whole open plan area dimensionsWhole open plan area dimensions

 

For cooktop island, we're looking at an in-ceiling rangehood so that we don't close off the space.

I found the Miele DA2906 for $1400, but need to check if it will fit in between the joists. Great price for it, but only seems to have 750m3/h extraction. Might be able to get the Sirius in-ceiling extractor from Harvey Norman discount warehouse for around $2300, but then extraction is somewhere around 900-1000m3/h.

 

Edit: Another thing I was looking at doing was having the island be 1.2m deep, which includes 60cm deep cabinets on the front, 30cm deep cabinets on the back and then 30cm overhang. Cabinets on the back would be for less used items.

 

Thanks

 

Regards

 

Itai

Jason
Community Manager
Community Manager

Re: Itai's Reno - Kitchen

Hi @Itai,

 

The wonderful @redracer01 is a Bunnings team member so isn't likely to recommend products from elsewhere. 

 

I will pass on your feedback about Kaboodle to the Bunnings team. Hopefully @redracer01 and other community members will be able to make suggestions based on your needs. 

 

Many thanks,

 

Jason

 

See something interesting? Give it the thumbs up!
Itai
Becoming a Leader

Re: Itai's Reno - Kitchen

Ah, sorry, I didn't realise :smile:

 

Jason
Community Manager
Community Manager

Re: Itai's Reno - Kitchen

All good @Itai. Workshop is brought to you by Bunnings but you are welcome to talk about products from other brands. You are just probably better served contacting them directly if you have questions about their offerings. 

 

Thanks,

 

Jason

 

See something interesting? Give it the thumbs up!

Why join the Bunnings Workshop community?

Workshop is a friendly place to learn, get ideas and find inspiration for your home improvement projects