The Bunnings Workshop community can help with your home improvement projects.
Welcome to the Bunnings Workshop community @TinaE. It's wonderful to have you join us, and many thanks for your question about your kitchen plan.
I haven't come across much discussion about a kitchen feeling disproportional to a living space before. Kitchens are functional spaces, and whether they are large or small, their purpose is served if they get the job done. What was your concern about the kitchen looking out of proportion? If you had concerns that the kitchen was too small in general and wouldn't function well for the size of your household, then it would be worth increasing its size.
You might like to have a read through @Adam_W's article on How to plan a kitchen renovation.
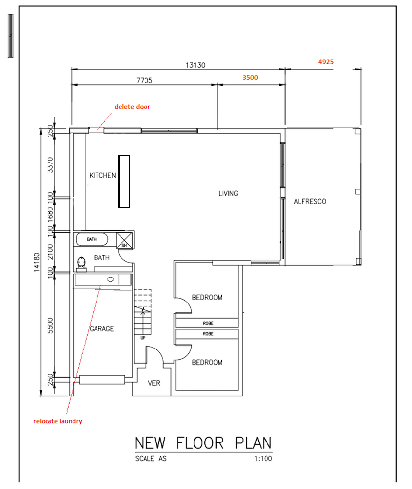
Since the laundry is being removed, is that space now a substantial walk-in pantry? If so, that should be included in the size of your kitchen, which would be 1/3-1/2 the size of your dining area. That's relatively proportional, in my opinion.
Perhaps you could push the island bench out to the window to get a bit more floor space in the kitchen.
Mitchell

If I were in your position, I'd take the oppurtunity to create a massive open kitchen space with an Island Bench, rather than adding a butlers pantry. You'd open up the house, create massive amounts of bench space and create a well flowing workspace.
Thank you so much for your input, my husband laughed and had the same response to you in regards to the kitchen feeling out of proportion haha. And thank you for your idea, that has actually been so helpful in terms of us being able to visualise other options. Cheers!
You are fantastic, thank you! Yeah this works so much, was struggling to see it. I've actually sent your rough update to our builder to see what they can do, hope that's okay. Thank you so much!
Hello @TinaE
It's great that you've received fantastic advice from @MitchellMc and @Remarka6le. Just to add to the suggestions made, I had the same idea in using the whole space as a kitchen but with a twist. I suggest placing a wall in front of the main wall to serve as a divider and use the entire back wall as your walk-in pantry. There is so much space that I managed to bring your laundry back inside. But if you wish to use it as just the pantry I'll leave that decision up to you.
Putting your laundry in the garage is a good idea but I couldn't find any indication of indoor access. Does that mean you'll need to step out of the house to get to the garage/laundry? I've also drawn up the current layout you have in your plans so that you can see the difference between how open the other plan is. I've placed a depth of three meters from the back wall to the front. That's why when you look at the drawing the island/breakfast bar is stepping out of the three-meter area.
Please have a look at the sketches and tell me what you think. If you wish to see it in another configuration please let me know.
If you have any other questions we can help with, please let us know.
Eric
Hi @TinaE
Great suggestions from@Remarka6le & @EricL IMO
My 2c worth would be to
I don't have time now but if you haven't locked in a plan I can mock up a layout for you to visualise.
Cheers, peter
Thank you so much for creating this for our layout, such a cool design. Our garage is accessible from the inside, the plans don't show it but there's a door at the foot of the stairs leading into the garage. This is seriously cool - never even imagined the space like this!
Thanks Peter, that's okay. I think we've got a few options that we've given to our builder so just waiting to see what they can do for us. We're not touching the bathroom at the moment, that's probably more of a project later down the track. But good suggestion about moving the sink to the island - I'll add that to our list. Cheers!
Hello @TinaE
I just wanted to ask how your plans were coming along and if any of our suggestions made it into your final plans?
Eric
Workshop is a friendly place to learn, get ideas and find inspiration for your home improvement projects
We would love to help with your project.
Join the Bunnings Workshop community today to ask questions and get advice.