Hi everyone!
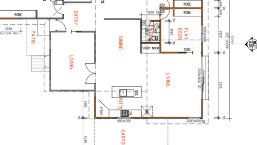
My husband and I are about to settle on our new home for our family of 5 and are in the middle of planning the renovations with our draughtsman. We are not very handy and don’t have any experience with renos so would love any advice or tips that you can throw at us. I’ve read quite a few of the discussions and really enjoy the helpful ideas and friendly vibes on this site. I might make a few posts for different areas of the house but thought I’d start with the kitchen.
It will be relocated during the renovation so we will be starting from scratch. I’m planning on doing a kaboodle kitchen. I’ll attach the current working layout for the area of the house though we have not gone into detail at all about the layout of the kitchen. I’d love to have a rectangle walk in pantry on the side wall if it does not appear obtrusive when you enter from the living room. Do you think this would work?
It would be great to have some bench space in there either end to have appliance plugged in on. If a rectangle walk in pantry is too obtrusive into the room do you have any other suggestions for how I can include hidden away areas for my appliances to be plugged in?
Another question I have is about where I should incorporate windows into the kitchen as the back wall is north facing? I’d love any suggestions or brainwaves anyone has when they look at my plan as I’ve never done this before and am feeling the weight of all of the decisions to be made though I am also excited about the opportunity.
Thanks heaps!
jess
also, the length of the kitchen is about 4m and we live in Melbourne
