Recently moved into a coastal house built back in the 80s by an owner builder handyman. The kitchen is very dated and in poor condition with non standard sized cabinets and three blind corners two with no access so I'm going to replace it.
My wife and I are both in our sixties so ease of access without bending is a main requirement.
A list of things we want include:
An elevated oven, not under bench type.
As many underbench drawers for storage as possible and as few underbench cupboard doors as possible. (Even under the cooktop if possible)
A dishwasher.
A pantry with good access and storage above bench height and draws below bench height. ( Like the Kaboodle 900mm option)
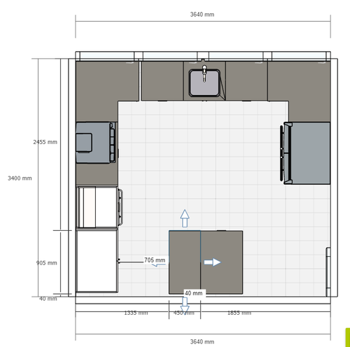
Need to make access to the corners easier so that we can use the space. The current kitchen has 300mm either side of the stove blocked off with no access at all.
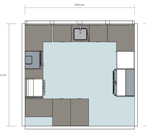
The kitchen area is pretty small. The main back wall across under the windows is 3.64 meters. Left hand side from the fridge to the back wall is 3.1 meters with a max of 3.3 if some light and fan switches were relocated. Right hand wall is 2.7 meters from a sliding door to the back wall but existing bench is at 2.5 meters and a power point would have to be moved to get the full 2.7 meters. No big problem is required.
What we hope to end up with is a nice useable kitchen with easy access storage and oven so that bending over is kept to a minimum.
I have included some photos of what we have now and we would be grateful for any suggestions.



