Workshop
Ask a question

The Bunnings Workshop community can help with your home improvement projects.

How to build timber indoor cat enclosure?

devika26
Finding My Feet

How to build timber indoor cat enclosure?

Hi, I just got a townhouse and on the upper floor. I have 17 cats with who are like my children so i would like to provide the most comfort and stress free life from them but also to ensure they dont fight so my neighbors would not find out how many I have. I have attached the room I will be building the enclosures in. My plan is to have 17 small sized wooden enclosures mounted on the wall so each one of them will have their own space. I cant let them out in the living room which is connected to the kitchen because they have habits of scratching things and unhygienic(the kitchen where i cook). I actually lost my husband recently who was the one planning their entire room and their playing area. With him gone, i have to rely on outside help which is carpenter and i need to provide a concrete concept and plan so they can get started right away. I also plan to use the staircase area which is attached together with the house(some townhouse have the stairs outside but mine is inside with thick walls). Attached is the room and  staircase area. If any of you have ideas or concept that goes with the space I would be very glad for ur help. I also will attach the designs i found online and hope to get advice on whether my plan is feasible. PS: The enclosures will be in the room while the playing area will be in the staircase. WhatsApp Image 2025-06-17 at 7.45.24 PM.jpegWhatsApp Image 2025-06-17 at 7.49.23 PM.jpeg
Small cubicle.jpegSImple staircase area bed design.jpgCat wall playground, Cat furniture, Cat bed, Cat….jpegd3822bec-30b1-4449-b2cc-4c743e8a1168.jpeg35e726a64dc9e1bf821e4da439204b87.jpgStaircase area design.jpg

EricL
Bunnings Team Member
Bunnings Team Member

Re: indoor single cat wooden enclosure

Hello @devika26 

 

Welcome to the Bunnings Workshop community. It's sensational to have you join us, and thanks for sharing your question about your cat enclosures.

 

It's definitely possible to build your cat enclosures, but I believe they have to be built in such a way that each enclosure is accessible to all the cats. I propose building them with spacing so that they don't appear too bunched together and the cats will not be in each other's way. The play area should be an interesting build, but my only thoughts are to keep it low so that none of them get injured if they jump off of it.

 

Please allow me some time to draw up a sample sketch of the enclosures and play area. As soon as I've finished, I'll post the drawings here.

 

If you have any other questions we can help with, please let us know.

 

Eric

 

See something interesting? Give it the thumbs up!

Re: indoor single cat wooden enclosure

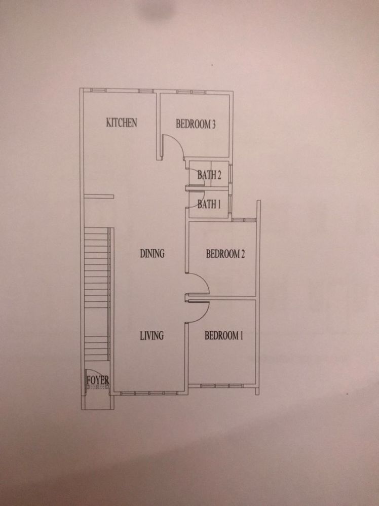
Hi Eric, thank you so much for your response and I am looking forward to the sketch. But the enclosures i planned would be 17 in total, which 1 for each of them so they have their own space, feeding station and litter drawer. I want to do this way as I am a freelance photographer and would have to travel on weekends and I need to make sure they all are comfortable in their own space. Thus each enclosure is actually private to each one of them and i will place a name sticker on each one so i remember to put them back in their own enclosure. That means i also need to be able to close and open the enclosure so a plastic or glass door would be best option. I am also attaching the floor plan to help with the sketch. I will be using bedroom 2 which is approximately ard 9x9 feet and staircase(not sure about the size) area for them. WhatsApp Image 2025-06-18 at 1.06.22 PM.jpeg

EricL
Bunnings Team Member
Bunnings Team Member

Re: indoor single cat wooden enclosure

Hi @devika26 

 

Thank you for the extra information. I'll add those details as I draw up their enclosures.

 

Eric

 

See something interesting? Give it the thumbs up!
EricL
Bunnings Team Member
Bunnings Team Member

Re: indoor single cat wooden enclosure

Hello @devika26 

 

Since you've indicated that the cats will need to be enclosed in their own space. I followed the example in one of your pictures. However, I've adjusted the shelf and size of the living quarters for larger mature cats. The layout of utilities will still be the same, the kitty litter at the bottom and the feeding bowl on shelf, you can include a drinking bottle if you wish.

Ventilation will be at the top of the box where I've placed a single timber piece that is just slightly lower than the roof. I propose using Perspex for total safety for both you and the cats. For the enclosure itself, I suggest MDF painted and fully sealed for affordability. Please have a look and tell me what you think.

 

Eric

 

cat partment 4.jpgcat partment 3.jpgcat partment 2.jpgcat partment 1.jpg

 

See something interesting? Give it the thumbs up!

Re: indoor single cat wooden enclosure

Wow, this is very useful design for my cats. But some of the material you mentioned I do not know if can get in my country. I will let the carpenter know about it in case he knows of them. I actually changed my mind to make a large floor to ceiling cabinet filled with this enclosures built side by side instead because every carpenter i asked told me its risky to mount individual enclosures on the wall without a solid metal frame. But i can incorporate your design in the the cabinets for them so likely 8x8 enclosures in one cabinet thus 2 cabinets in total that i can place in the room. Rest of the room space can be utilized as their playing space. 

DIYGnome
Becoming a Leader

Re: How to build timber indoor cat enclosure?

Hello @devika26 welcome to the Workshop Community 👋

 

17 is quite a lot of cats but having "fur children" ourselves I must reiterate what @EricL has already expressed regarding a shared common area, being highly intelligent, inquisitive & social creatures they would benefit from interaction with each other (at their own discretion), if 17 is not feasible how about 3 larger enclosures to host 5 - 6 cats each? 🤔

 

Apart from space, ventilation would also be a consideration for warmer weather....

 

Additionally... from a legal perspective local Councils here in Australia have "breeders permits" which allows a greater number of pets per household without having to worry about infringing on local by-laws... perhaps there is something similar where you are situated?

 

Lastly, I really like the examples (play area) you have shared and might "borrow" some ideas... thank you 😊 

Re: How to build timber indoor cat enclosure?

Unfortunately I do not have such laws here in my country. As long there is no noise or awful smell that disturb the neighbours, they generally will not make complaints. So that is what I am striving for. I can make shared spaces however due to having 17 cats, some of them do not like each other and tend to get into spats. I can isolate the ones that gets along but the ultimate concern is regarding the litter bins. Due to limited space of my current rental space, they are all sharing litter bins as i dont have enough space to put 17 litter bins. This causes some of them to do their business outside of litter bins and also territorial marking or urine spots outside of litter bin. I already checked their health, all of them are fine so suspected due to stress of co-mingling in a small space. Thats why i decided to give each of them their own private space with bed, litter been and feeding station along with small scratch post if possible. But I am planning to let them out to mingle with each other whenever i am at home and the enclosures are mainly when i am sleeping and when i am not at home. Some of them also have fungal problem where there are bald spots while others have rashes. I need to separate their food so i can add necessary supplements for those who only need it while others eat the regular food. The staircase will be their playing and mingling area as well as small section of the room. 

EricL
Bunnings Team Member
Bunnings Team Member

Re: How to build timber indoor cat enclosure?

Hello @devika26 

 

My only other suggestion for materials is either pine timber or plywood. But if you have an abundance of a different type of panel where you are then that is what you should use. In regards to safety, I suggest anchoring the cages to the wall of the house using masonry screws and only having a maximum of two levels so that it is safe for the cats and safe for you as well. 

 

If you need further assistance, please let us know.

 

Eric

 

See something interesting? Give it the thumbs up!

Re: How to build timber indoor cat enclosure?

Hi sir, I already hired a carpenter and he informed me that the material will be pine wood. Also I have changed from mounted type enclosures to a large cabinet with 6 enclosures in each which totals to 3 cabinets. I also requested for it to be attached with wheels so i can move them when i need to clean under the cabinet. I completely forgot that I could design cabinet instead of mounted small enclosures due to preconceived notion. I have attached a sample of the cabinet I told the carpenter to make but with some changes within each enclosure according to the design you sent me. I trully appreciate your help in this and the carpenter have not started work yet so if you have additional design ideas or other concepts i would love to hear them. I also ask for drawers to be included in each enclosure for ease of cleaning and emptying out the litter. Maybe you can help me to incorporate that into the design? Again I am grateful for all the suggestions and support from the talented people in this site. I will definitely upload the finished product here soon. b1b27218-af30-45b5-bc5b-54ea1be977cf.jpeg614220e1-cde6-411f-9896-edd89f80065d.jpeg

Why join the Bunnings Workshop community?

Workshop is a friendly place to learn, get ideas and find inspiration for your home improvement projects