Workshop
Ask a question

The Bunnings Workshop community can help with your home improvement projects.

How to install wardrobe doors and tracks?

Mukka53
Getting Established

How to install wardrobe doors and tracks?

Hi,

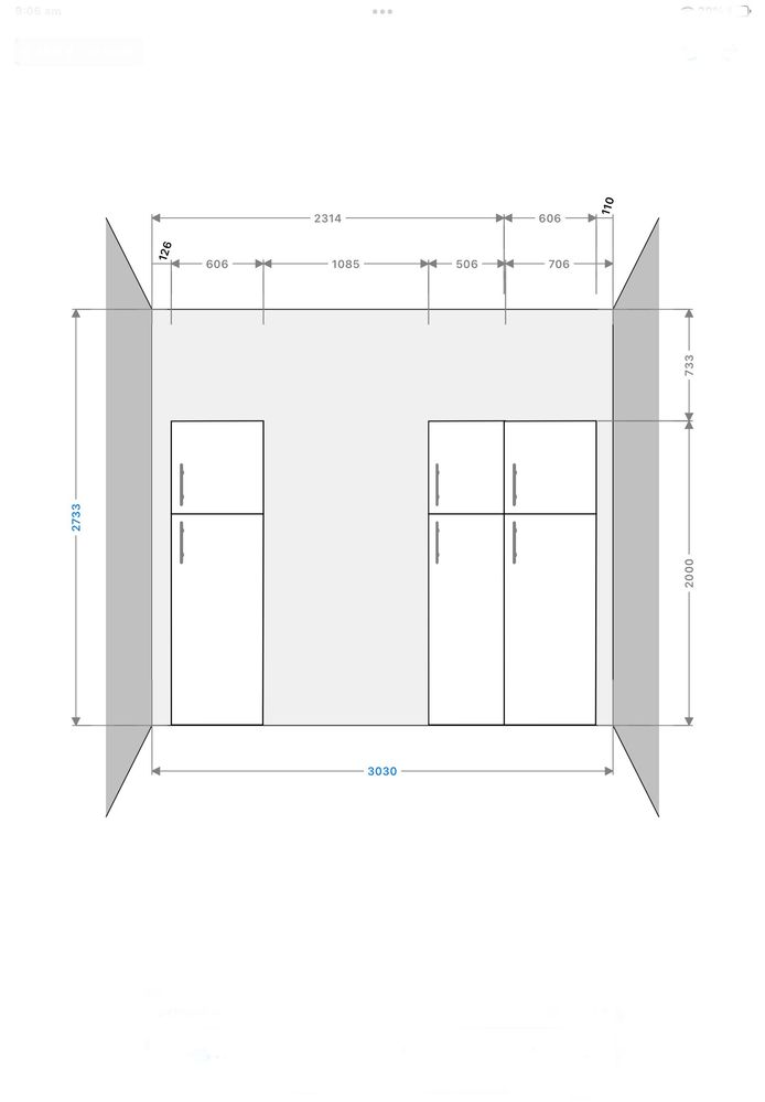
I am wanting to install a 3 FLEXI wardrobe plus 2 rails and  can’t seem to locate any tracking systems for the doors.

 

I have attached images that will show you the idea.953A8146-9439-4C0E-9167-C897496B94E8.jpeg

 

Cheers

EricL
Bunnings Team Member
Bunnings Team Member

Re: Wardrobe Doors and Tracks

Hello @Mukka53

 

Welcome to the Bunnings Workshop community. It's marvellous to have you join us, and thank you for sharing your questions about Flexi wardrobe doors. 

 

I believe the Flexi wardrobe doors are built specifically for the Flexi wardrobe cabinets. Let me investigate further to find out if the tracks are sold separately. An alternative to the Flexi system is the Bedford wardrobe door system. These doors are designed to fit into the Cowdroy track sets that allow you to make a double or triple set-up if you want to. The Bedford doors have wheels at the bottom and run on bottom tracks, the top part is composed of aluminium channels that don't need any special fittings. 

 

Here is a link to the Cowdroy Robe Range brochure: Cowdroy Robe Range

 

If you have any other questions we can help with, please let us know.

 

Eric

 

See something interesting? Give it the thumbs up!
EricL
Bunnings Team Member
Bunnings Team Member

Re: How to install wardrobe doors and tracks?

Hello @Mukka53 

 

Thank you for your patience, I've just been in contact with the Flexi technical support group. I've been informed that the rail systems for those doors are not sold separately. You must purchase the Flexi carcass for your wardrobe in order to use the Flexi wardrobe doors.  

 

Here is a link to the Flexi Wardrobe Systems: Sliding Wardrobe.

 

If you have any other questions we can help with, please let us know.

 

Eric

 

See something interesting? Give it the thumbs up!
Mukka53
Getting Established

Re: How to install wardrobe doors and tracks?

Thanks Eric for your speedy response and all the information was greatly appreciated but it seems that Bunnings is low on stock of  the products I am interested in but I will press on.

 

Cheers 

Jason
Community Manager
Community Manager

Re: How to install wardrobe doors and tracks?

Let us know if you need a hand with sourcing products @Mukka53, we're here to help.

 

Jason

 

See something interesting? Give it the thumbs up!
EricL
Bunnings Team Member
Bunnings Team Member

Re: How to install wardrobe doors and tracks?

Hello @Mukka53

 

As my colleague has mentioned if you ever find a product you like but is currently low on stock, please keep in mind that any item in the store can be specially ordered. These include panels, doors, tracks and accessories. 

 

If you need further assistance, please let us know.

 

Eric

 

See something interesting? Give it the thumbs up!

Why join the Bunnings Workshop community?

Workshop is a friendly place to learn, get ideas and find inspiration for your home improvement projects