Workshop
Ask a question

The Bunnings Workshop community can help with your home improvement projects.

How to mount a TV and shelves to metal studs?

puttputt
Just Starting Out

How to mount a TV and shelves to metal studs?

Hi All,

 

Hope you've had a great holiday season. I've started mine with a little hiccup 😅...  where I tried to install a TV wall mount unit and it fell. Thankfully no one was hurt, TV still works, and the plaster isn't too badly damaged. 

 

TV Wall mounting

Other Notes

  • I pre-drilled the holes and then drilled-in the cladding screws. I assumed it was OK to do this because I already pre-drilled the holes prior to purchasing the cladding screws... 
  • I think at around 65mm(?) from the plaster - I think I'm hitting the external concrete. The apartment has a balcony and on the wall I'm mounting to has a concrete wall that goes out to the balcony.

 

What I was wondering if I could try installing the mounting unit by offsetting it higher (i.e., not using the same holes but still on the metal stud) OR should I use some kind of backing board like https://www.bunnings.com.au/customwood-900-x-600-x-3mm-backing-board-white-standard-e0-mdf_p0610153? If using a backing board what other things/tools/wall anchors do would I need?

 

Floating Shelves

I'm planning on installing shelves that use hidden suspension brackets (i.e., https://www.ikea.com/au/en/p/lack-wall-shelf-white-70282181/) would appreciate your advice on how best to mount these to metal studs so they can take a load. The product page says it can take a load of 15kgs (when installed correctly) and I'm planning on using it as a bookcase.

 

Here's the installation guide for the screws. The 

puttputt_0-1767531689504.png

 

I'm open to alternative products that are available in Bunnings, ideally something that can hold a bit of weight.

 

Would appreciate your advice and guidance on how to successfully and securely mounting the tv mount and floating shelves to my walls. 

 

 

 

MitchellMc
Bunnings Team Member
Bunnings Team Member

Re: How to mount a TV and shelves to metal studs

Welcome to the Bunnings Workshop community @puttputt. It's fabulous to have you join us, and many thanks for your question about mounting to a wall.

That’s a scary moment, but I’m glad to hear no one was hurt and the TV survived. You’ve done a good job already working out that you’re dealing with metal studs, that detail is key here.

 

Starting with the TV mount, the main issue is the screws that were used. Those Buildex cladding screws are designed primarily for fixing into timber, which is why they have a very coarse thread. Metal studs are made from thin-gauge steel, and coarse threads don’t bite well into that thin material. For metal studs, you generally need metal screws with a self-drilling or self-cutting tip and much finer threads, so they can properly engage with the steel. Pre-drilling can also be a problem, because unless the hole size matches the inner shank of the screw perfectly, the threads won’t bite at all and the screw can pull straight out, which may be what happened here.

 

Another concern is how many fixings actually went into the stud. With a bracket like that, it’s very easy for some of the screws to end up in plasterboard beside the stud rather than into the steel itself, and plasterboard alone won’t hold those screws at all. That means the load ends up being carried by far fewer fixings than intended. This is why it’s important to rethink the mounting approach rather than just reusing the same method in a new position.

 

If you can let us know roughly how much the TV weighs, that will help guide the safest solution. For lighter TVs, it can sometimes be acceptable to use a combination of proper metal stud screws into the stud and heavy-duty spring toggles in the plasterboard for the remaining holes. For larger TVs, particularly in the 50 to 70 inch range, you really want the majority of the load going into something solid, not plasterboard.

 

The backing board idea of using a 3mm MDF panel, unfortunately, won’t help here. It’s far too thin to add any real strength and would still rely on the same weak fixings behind it. A proper mounting board would need to be something like structural plywood, fixed securely across multiple studs, then the TV bracket fixed to that board. That spreads the load and gives you far more reliable fixing points, but it does take a bit more planning and work.

 

For the floating shelves, the principles are very similar. The 15kg rating quoted by manufacturers is usually based on fixing into a solid masonry wall like concrete or brick. The shelf itself may be capable of that load, but the fixings into plasterboard or metal studs are the limiting factor. With metal studs, you can fix some of the bracket holes into the stud using fine-thread metal screws, and use heavy-duty plasterboard spring toggles for the remaining holes. That can work, but you need to be realistic about the load and not push it to the full stated capacity. For a floating shelf on plasterboard and metal studs, I’d be more conservative and keep the load well under that 15kg, especially if it’s being used for books.

 

Overall, metal stud walls do make this more challenging, but it’s manageable with the right fixings and expectations. The key changes are using the correct fine-thread metal screws for the studs, limiting reliance on plasterboard alone, and for heavier items like a large TV, seriously considering a load-spreading mounting board or professional installation for peace of mind.

 

Here's a helpful guide: How to hang just about anything.

Please let me know if you have any questions.

Mitchell
 

See something interesting? Give it the thumbs up!

Re: How to mount a TV and shelves to metal studs

Thanks for that@MitchellMc.Looks like even with the right screws the mounting could have failed anyway, good that it failed now rather than later. The extra challenge here is the TV mount is a 'full motion' so the TV can be pulled to/from the wall and left/right. The TV is a 55 inch Toshiba (56U4750A) and is around 14kgs.

 

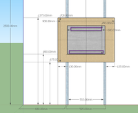
I've put the plan below.

  • I was thinking of using plywood that's 900H x 700W as the TV mounting bracket is 450H x 600W.
  • Use 6 metal screws to mount the plywood to the metal studs (3 per side/stud)
  • Use 4 heavy duty spring toggles to mount the plywood to plaster.
  • Use 8 screws to mount the TV mount bracket to the plywood (and maybe through plaster?). 

TV Mount plan1.png

Here's a copy of the plan if you want to make changes to the screw points.

TV Mount plan template.png

 

The depth of the wall is around ~60mm (measuring from the plaster).

If the plan above is the way to go:

1. Which screws would you recommend for each (plywood to metal stud, plywood to plaster only, tv bracket to plywood)?

2. Which plywood would you recommend and the thickness of it? I'm guessing I can get the plywood cut to size at the shop?

 

For the bookshelves:

1. Which metal screws would you recommend? The hex heads may be too big but I do need it to be a 'round head'(?) so the bracket can be mounted.

 

Thanks!

AlanM52
Amassing an Audience

Re: How to mount a TV and shelves to metal studs

Hi @puttputt,

 

LLF226_LS_side_extended_tilted_down copy.jpg

 

Keep in mind the tremendous pulling forces that the top row of screws/fasteners must withstand when the TV is located like that.

I am thinking that TV wall bracket is only suitable for masonry walls... just saying.

 

Cheers

 

MitchellMc
Bunnings Team Member
Bunnings Team Member

Re: How to mount a TV and shelves to metal studs

That would be the correct way to do the mounting @puttputt.

 

Regarding the screws into the metal studs, we've actually just gone through a range change. Typically, I would advise using these Bremick Metal Bugle Screw 14g x 75mm T40 B8 PK100. However, you'd want the type that doesn't have the winged tip. They may not currently be in stock. The alternative would be these Buildex 12G x 68mm Class 3 Galvanised SuperTEKS® Series 500 Screws with Seal - 50 Pack, but as you mention, they have a larger head. My concern about using the Metal Bugle screws with tips is that the thin metal studs might not shear of the tips as thicker metal would. If it doesn't, then the hole can be over-sized to grip the thread.

Plywood to plaster, I would use spring toggles and the screws for the brackets to plywood depends on the size of the holes in your bracket. Standard timber screws should suit. You just need something with a large enough head for the hole in the bracket.

 

I'd be going with at least a 16mm plywood, and typically, it can be cut in-store.

 

Mitchell

 

See something interesting? Give it the thumbs up!

Why join the Bunnings Workshop community?

Workshop is a friendly place to learn, get ideas and find inspiration for your home improvement projects