Workshop
Ask a question

The Bunnings Workshop community can help with your home improvement projects.

Do you need a permit for a deck that is not joined to the house?

tomadams1990
Just Starting Out

Do you need a permit for a deck that is not joined to the house?

I have just moved into a new build and plan to build a deck in the garden. 

I was planning to do this myself as I'm pretty handy with this sort of thing but was researching permits. 

I note that there is a permit requirement if securing to the house, using a ledger board, however if I were to not use a ledger board and have the stumps close enough to the house that the joists had a slight overhang (say 100-200mm max), would this get around the requirement for a permit? So it would have the same look without being technically joined to the house. 

 

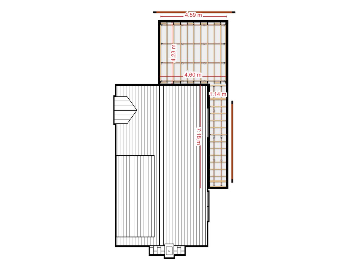
Assuming not, would obtaining the permit mean I have to enlist an authorised contractor to do the decking?Decking.jpeg

EricL
Bunnings Team Member
Bunnings Team Member

Re: Decking and Permits

Hello @tomadams1990 

 

Welcome to the Bunnings Workshop community. It's sensational to have you join us, and thanks for sharing your question about your deck. 

 

Having a free-standing deck will simplify things as a ledger will no longer be necessary. 

 

Having a ledger means that it will need to be anchored properly to the house frame, this will require a builder or engineer to make an inspection and assess the strength of your anchor point. It has to have a termite barrier which will require a pest control specialist that provides a barrier installation service. It will therefore need a plan drawn up by a draftsperson which will take time.

 

Whereas a free-standing deck is an independent structure with no need to be anchored to your home. 

 

However, before you proceed, I suggest checking your local council's rules and regulations regarding installation of low-level decks. I'm certain that they have conditions regarding the height, width and length of low-level decks.  

 

But to answer your question, if a permit is required, you'll need a contractor to assemble it for you as it will get inspected and signed off.

 

If you have any other questions we can help with, please let us know.

 

Eric

 

See something interesting? Give it the thumbs up!

Re: Decking and Permits

Hi Eric, 

 

Thanks for the reply, much appreciate. 

So am I right in thinking If I were to have the stumps close enough to the house that the joists had a slight overhang on the bearers (say 100-200mm max), giving the same look as being connected to the house, but actually not being directly connected this would be considered 'free-standing'? 

 

I did look that up the noted the minimum depth requirement in VIC was 400mm from the underside of the deck panels -Screenshot_2024-05-14-19-23-52-78_6012fa4d4ddec268fc5c7112cbb265e7.jpg which we have already dug out. 

Thanks 

Re: Decking and Permits

Hi @tomadams1990,

 

In your plan, you are not connecting to the house; if that is the council's requirement for not needing a permit, then none would be required. It likely wouldn't matter if the deck were built one metre away or one centimetre away; if it's not connected, it's not connected. It's more about installing a ledger board and having the house supporting part of the deck. However, the council is the best place to get information on their requirements, so I'd recommend you confirm with them, just to be sure.

 

Mitchell

 

See something interesting? Give it the thumbs up!

Why join the Bunnings Workshop community?

Workshop is a friendly place to learn, get ideas and find inspiration for your home improvement projects