Workshop
Ask a question

The Bunnings Workshop community can help with your home improvement projects.

How to build a metal outdoor pull-up bar?

luv2diy
Just Starting Out

How to build a metal outdoor pull-up bar?

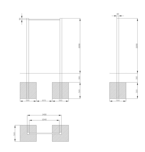
I'm planning to build an outdoor pull up bar made entirely of metal, similar to the attached image.

Please help with any tips or suggestions on where to source the materials.

I was thinking:

2 - 3m x 80mm x 80mm hollow galvanised steel beams

1 - maybe a vulcan rig pull up bar

Concrete mix

Screenshot 2025-01-07 at 7.33.02 pm.png

Screenshot 2025-01-07 at 7.21.59 pm.png

 

MitchellMc
Bunnings Team Member
Bunnings Team Member

Re: All Metal Outdoor Pull-up bar

Welcome to the Bunnings Workshop community @luv2diy. It's terrific to have you join us, and many thanks for your question about building a pull-up bar.

The closest post we are likely to have would be the Australian Handyman Supplies 89 x 89mm x 3.0m Galvanised Steel Fence Post - galvanised 3.0m. We've also got plenty of concrete mix for your project.

 

Most of our pull-up bars are not suitable for exterior use.

Please let me know if you have any questions.

Mitchell
 

See something interesting? Give it the thumbs up!

Re: All Metal Outdoor Pull-up bar

Hey Mitchell, 

Thank you for your welcome and the advice!

Upon further research, I need two 89mm x 89mm x 5mm 4m galvanised steel square tubes (the key being it's at least 5mm thick).

I found such a product over East: https://www.themetalwarehouse.com.au/shop-online/steel/square-tube/89-x-89-x-5-0-square-tube.html

 

And suggestions on the best metal supply shops or fabricators in Perth to obtain this from?

 

Many thanks.

MitchellMc
Bunnings Team Member
Bunnings Team Member

Re: All Metal Outdoor Pull-up bar

I'd recommend you speak with our help Special Orders team at your nearest Bunnings store @luv2diy. They'll be able to search our suppliers in your area to see if a 5mm thick post is available.

 

Mitchell

 

See something interesting? Give it the thumbs up!

Why join the Bunnings Workshop community?

Workshop is a friendly place to learn, get ideas and find inspiration for your home improvement projects