Hi Workshop Community.
I got a two-level deck + roof application council approved but I'm not sure how I'm going to build it.
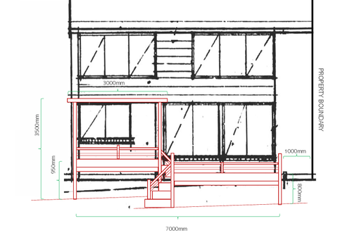
The upper deck area covers the interior of the little porch, connecting on the second step of the concrete stairs [red line]. The questions I have are:
1. how could I make the deck match the second concrete step in the porch [red line]?
2. should I screw the ledger on the wall in the porch or just put stirrups and bearer over the concrete?
3. Would the the outer concrete area resistant enough to install stirrups?
These are the approved plans.


Any recommendation would be highly appreciated. Let me know if you need more details.