Workshop
Ask a question

The Bunnings Workshop community can help with your home improvement projects.

How to build bifold aluminium slatted double gate?

GarthT
Finding My Feet

How to build bifold aluminium slatted double gate?

I am looking at installing double bifold aluminium horizontal slatted gates 1.8m high, across a 4.5m width on the side of my house to enable a caravan to be parked down the side of the house from a front driveway. With limited access from the driveway, no straight access to side of house, I will need the gates to open and fold to one side.

I was thinking of using a manual bifold system with strap hinges on the main weight bearing post (65mmx65mm), bifold hinges between the gates and a latch at the other post (65mmx65mm), with castor wheels supporting the gates running over concrete driveway and drop bolts to hold the gates at closed and open positions.

Is this possible without any complicated strut mechanism, as I have seen in automated systems.

JacobZ
Bunnings Team Member
Bunnings Team Member

Re: Bifold aluminium slatted double gate

Hi @GarthT,

 

Welcome to the Bunnings Workshop community, it is wonderful to have you with us.

 

Do you have some photos of the space where you are planning on putting this gate?

 

Just to clarify, is the idea that the full 4.5m width will be closed off by a single bifolding gate with two leafs, attached via strap hinges to a post on one side of the opening?

 

What you’re proposing certainly sounds possible in principle. In your case, the span and height mean the panels will have a fair bit of weight, so the success of the setup will depend heavily on how strong the posts are, how well they’re concreted in, and the quality of the hinges.

 

In my opinion, the biggest challenge won’t be whether it can work, but whether it will stay smooth and reliable over time. Castor wheels can help a lot with sagging, but they need a flat driveway to run on, or they can bind up. The folding action will also never be quite as controlled or neat as with an automated system, but if you’re happy with a hands-on, simple solution, there’s no reason it couldn’t work. 

 

Allow me to tag our helpful and knowledgeable members @Dave-1, @TedBear and @Noyade to see what they think.

 

Jacob

 

Dave-1
Community Megastar

Re: Bifold aluminium slatted double gate

Good Afternoon @GarthT 

Limited space and work arounds = Love it! Well the work arounds that is. I agree 100% with what @JacobZ has mentioned and would also like to see a photo of the area, width wise and depth wise if possible? It would make it easier to see in my mind some ideas, including marrying up what you have described that you want.

 

A question. The 65mm you mention, is that for a post? Or for the strap hinge width? If its for the post are they metal posts and how are they secured? Or likely to be secured as those gates will have to hold a resonable amount of sway weight as I think of it. Even if you substitute castors for larger rubber wheels that are made for carrying the load of a gate.

 

Will wait for some pics :smile: I think its definently doable, You just dont need to have to redo it or repair it in a few years time.

 

Dave

Re: Bifold aluminium slatted double gate

Hi Dave,

Thanks for your comments, much appreciated.

The house is currently being built and I will supply some pics when I check the place out tomorrow.

The 65mmx65mm is the size aluminum posts I was thinking of using and in ground mounting prior to having the driveway slab poured.

I mentioned strap hinges and bifold hinges, as I noticed these on another automated gate site. I could decrease the double gate span to a minimum of 3.6m to keep the weight down.

Plus I have noticed spring loaded gate wheels, similar to what Bunnings have, which I could use, as long as they seem to meet the requirement.

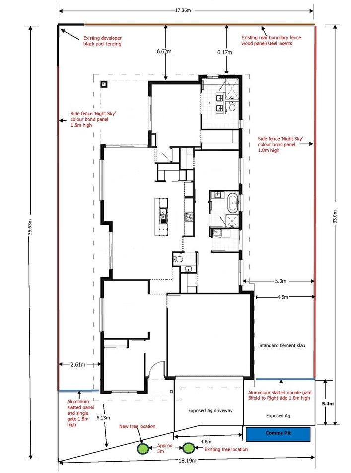
Have attached a plan of the house and fencing. The gate is at the front right side of the house.

 

JacobZ_0-1757745732841.png

 

 

Dave-1
Community Megastar

Re: Bifold aluminium slatted double gate

Good morning @GarthT 

When you say Aluminium posts, I am thinking steel posts. Just clarifying as the difference in weight carrying coukld be a factor. (I am being cautious is all) I prefer steel posts mainly due to their strength.

 

The spring loaded wheels are what i was thinking to help carry the load of the gate so it wont be as likely to sag. If you use the spring loaded wheels plus solid posts you really shouldnt have to worry about the weight. I would possible think of a sliding large bar across the "bend points" of the gate to help keep it ridgid in the wind and at the same time more secure. (Think like a castle gate securing bar. between the panels)

 

Dave

Re: Bifold aluminium slatted double gate

Thanks for your feedback back Dave.

I agree, I could use steel.posts, plus I would be attaching the hinge post to another post a perpendicular colourbond fence running down the side of the property boundary. Also, if the Biifold becomes too difficult, I could always do a wide single gate (3.5m-4m), with wheel a support at the latch end. That will depend on the opening swing distance on the driveway. Then add a panel to fill in the space against the house.

Why join the Bunnings Workshop community?

Workshop is a friendly place to learn, get ideas and find inspiration for your home improvement projects