The Bunnings Workshop community can help with your home improvement projects.
Hi
I am trying to design and build a 15m2 low level timber deck at my back yard. This is my first time building anything my self and I am a civil engineer by profession. I have attached the layout here for reference. As this is my first time , I would need assistance in designing all the elements of the deck - foundation ( depth of the hole for concrete , stirrup and posts), ledger, bearer and joists. For the decking I am planning to use EKO DECK+ from Bunnings. There are pebbles spread out at the proposed decking area and if possible want to install this deck from this pebble level. Proposed timber deck is outlined with yellow lines in the attached photos.
Thank you in advance.
Welcome to the Bunnings Workshop community @karthikeng. It's fantastic to have you join us and many thanks for your questions.
Might I suggest you start with the guide: How to build a low-level deck by @Adam_W. It then would be a great idea to browse through the many projects our members have contributed on low-level decks. No doubt, most of your questions will be answered.
Determining a footer size is not as simple as just digging a hole and filling it with concrete. A geotechnical engineer needs to take soil samples from the site, subject them to varying tests, and then specify the correct site classification according to Australian Standard AS 2870/2011 - Residential slabs and footings. They will then determine the footer sized required for the build. This process is generally required if you are submitting plans to council for approval. You could attempt to establish the required size yourself by contacting the council and seeing if they can provide the soil type information in your area. You'd then need to download a copy of Australian Standard AS 2870/2011 to get sizing. A footer of 350 x 350 x 500mm would be close to within the vicinity of where you'd need to be. You'll find the more reactive the soil type, the larger the footer needs to be. If in doubt, I'd encourage you to employ the services of a qualified professional.
Your joists and bearers' size will be determined by how much room you have to work with between the soil height and the finished height of the deck. Did you want the deck to finish flush with the tiles? If so, you would need to excavate enough of the pebbles and soil to accommodate at a minimum 90mm for the joist, 19mm for the decking and then the space under the structure for airflow and drainage. If you plan to raise the deck and step up from the tiles, this isn't so much of an issue; the timber used just needs to comply with load ratings and span tables.
Please have a look at the guide provided and then let us know if you have further questions.
Mitchell
Hi @MitchellMc
Thank you very much for your advice on the above matter. I am planning to have the deck on top of tiles and planning to clear some of the pebbles at least 90mm clearance below the deck. Spoke to council they are ok as long as the water drains through the deck and in to the ground and as the area is small there are lot of other exemptions for this scenario.
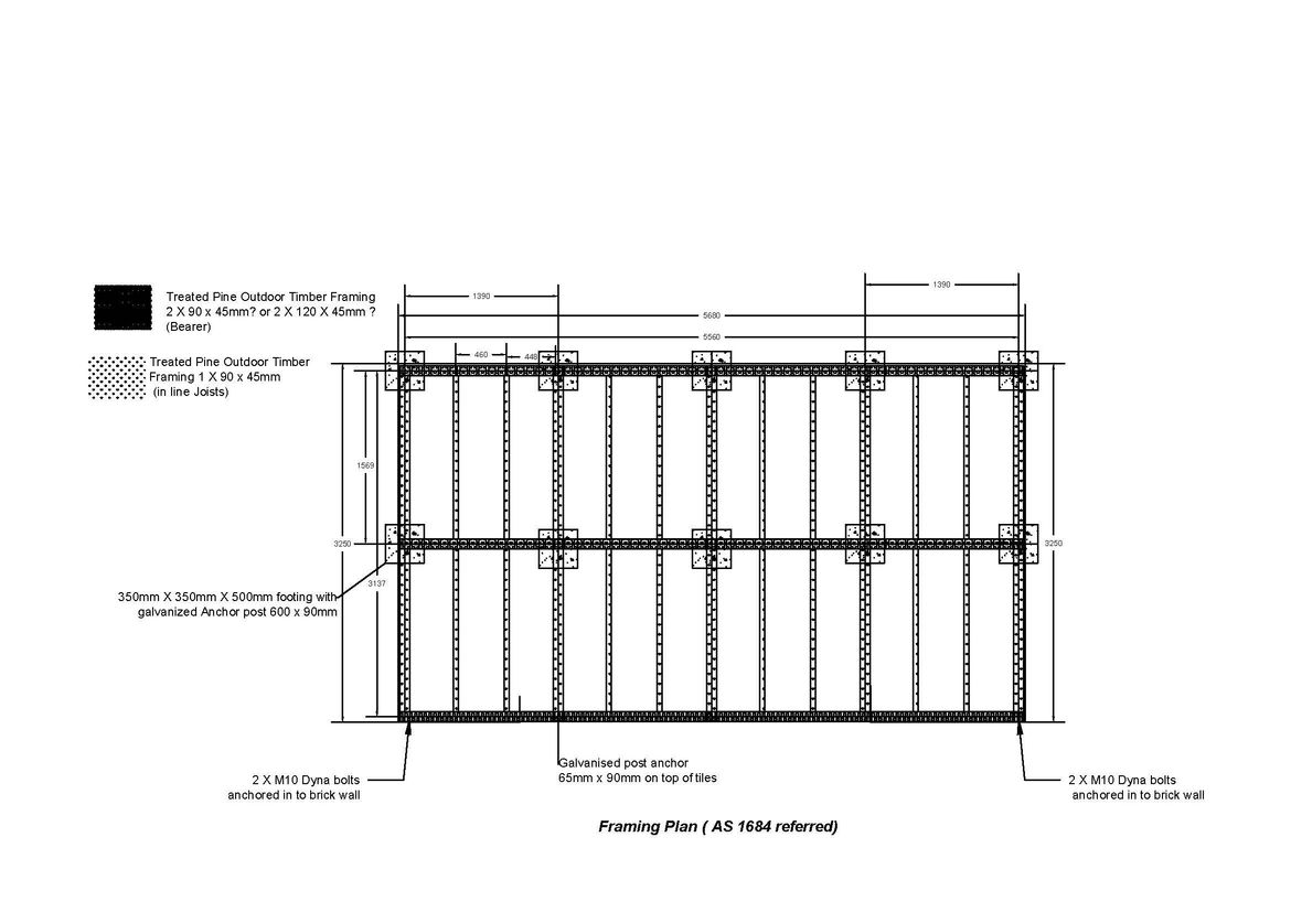
I did refer some of the decking project posted here and referred AS1684 standard while designing the framing part of the deck. I am not sure if 2 x 90 X 45 treated pine timber will suffice as a bearer for this span length or I needed 2 x 120 x 45mm timbers. I referred to AS 1684 Supplement 5 Table 5( floor bearers supporting floor only ) with floor width 6000mm continuous span - for 2 x 90 x 45mm timbers suggested span length is (Span 1100mm + 300mm Cantilever) total amounts to 1400mm which is around my designed c/c supports . For 2 x 120 X 45mm timbers suggested span length is (Span 1500mm + 400mm cantilever) . I am planning to add in noggings 1.8m apart ( missing in the drawings). Framing plan
decking planKindly refer to the attached drawings and please post any suggestions / improvement. Looking forward to commence my backyard project.
Hi @karthikeng,
If you can let us know how you intend on running the bearers, I'm sure we can provide information about what size timbers you'd need for them. 2 x 90 X 45 treated pine timber will suffice as a bearer over the 3250 mm span if it is supported at the 1500mm centre mark. However, you don't have enough room to construct a traditional joist over bearer deck. Below I have included a plan for the deck utilising joists. It will give you somewhere to start.
Mitchell

Hi @MitchellMc
Thank you for your reply , I am planning to run the bearer along the 5680mm length with galvanised anchor post supports and Use joist hangers to run the joists in line with bearer.
Workshop is a friendly place to learn, get ideas and find inspiration for your home improvement projects
We would love to help with your project.
Join the Bunnings Workshop community today to ask questions and get advice.