Workshop
Ask a question

The Bunnings Workshop community can help with your home improvement projects.

How to proceed with attic storage?

mike13
Finding My Feet

How to proceed with attic storage?

Hey Team, I’m wanting to add attic storage to our house but haven’t had much luck speaking with engineers - who want to take my first born for any advice provided. 

 

71B59BBE-68B4-4140-A9B5-989C4BB6540A.jpeg

This is the current timber from top plate upwards overlayed to scale on the house plans (see below for house plan dimensions). The large red beam is an LVL that spans the drop zone (3 odd metres).

 

I’m wanting to know if that LVL will support “floor joists” for mdf floor boards or do I need to create a new subfloor.

 

I’ve got creative on sketchup and thinking either steel or wood , adding another LVL to assist. The one below is steel, sliding a larger section in adjacent to the LVL to pick up the joist hanger. (If that makes sense).

16169571-F692-407F-A04F-17256E6DF768.png

Hoping someone can provide some advice - as I don’t think laying boards straight onto the ceiling joists is wise - which is the advice I’ve been given by attics storage installers! ? 

 

A50BD4EF-D6B6-4D07-88CD-8F820C141CF6.png

 This is the same as above but from above.

 

B6701594-C99A-4577-BC83-2F20D44CF31A.jpeg

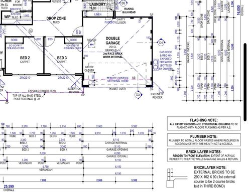
 This is the house plans.

 

262BC230-C91A-409B-8E4F-0F704938FB3C.jpeg

this is an alternative plan - with timber but only if I’m able to make use of  the LVL.

 

DB1D2E1E-AF6E-42C9-8017-222C2BA30D1E.jpeg

this is the LVL and ceiling joist hanger to the right.

 

F6C60C7C-A405-4DC9-BEEF-FD2EF3ADC287.jpeg

this is standing on the LVL looking across the area (pre ladder being installed).

 

 Any help/advice would be appreciated!!

EricL
Bunnings Team Member
Bunnings Team Member

Re: How to proceed with attic storage

Hello @mike13

 

Welcome to the Bunnings Workshop community. It's awesome to have you join us, and thank you for sharing your question about your attic storage.

 

Turning your attic or roof space for storage is a serious undertaking because it impacts major structural aspects of the house. 

 

Many conditions need to be taken into account when converting the space. Your local council will have regulations regarding the use of the attic as storage. Placing a sheet of plywood will not be enough to support you and the items you will be storing. I recommend engaging the services of an engineer or builder for a quote for possible conversion costs. In this manner, it will be built to carry weight.

 

I'm so sorry, but I'm afraid this is a project where you will have to get the professionals involved. Depending on what the rules are in your state the alteration to your house will possibly need to be sighted and inspected by your local council. It will need engineering plans that are signed off. Your builder will also have to sign off on it.

 

If you need further assistance, please let us know.

 

Eric

 

See something interesting? Give it the thumbs up!
MikeTNZ
Amassing an Audience

Re: How to proceed with attic storage?

@mike13

Like EricL, I have some worries about this, you seriously need to engage a structural engineer for this sort of thing,

you may not want to hear that but there have been a couple of houses over here in NZ where the owner "just did it"

and half the house collapsed, in the second case, it bought the roof down as well.

A house is a big investment these days, you don't want this ending in tears.

Re: How to proceed with attic storage

Thanks for you reply - I reality I thought I may have had to face! Thanks again for you reply!

shelldan08
Getting Established

Re: How to proceed with attic storage

Hey mike, doing a bit of googling and came across your post

how did you end up going with the project? Your “alternative plan with timber” is currently exactly how I’m imagining doing mine.. just wondering what you ended up doing..?

cheers

Re: How to proceed with attic storage

Welcome to the Bunnings Workshop community @shelldan08. It's brilliant to have you join us, and many thanks for your question about creating attic storage.

 

Let me mention @mike13 to see if they can provide an update on the project.

 

It's important to remember that ceilings are constructed to hold up sheeting materials and support the roof structure. They are not designed as second floors or for space to store items. I'd eco @MikeTNZ's advice to speak with someone specialising in construction and determine the required modifications to use your ceiling space for storage. Once you get that sorted you'll be free to proceed with your project.

Please let us know if you have any questions.

 

Mitchell

 

See something interesting? Give it the thumbs up!

Re: How to proceed with attic storage

Thanks Mitchell

mines planned to go in the garage supported by a wall one end and a steel strutting beam the other with no contact to the existing joists

should be no issue?

Re: How to proceed with attic storage

I'd need to know much more about how you are constructing the flooring to offer any opinions @shelldan08.  What's supporting the flooring/new joists in between the wall and the beam if no weight will be borne by the existing joists?

 

Mitchell

 

See something interesting? Give it the thumbs up!

Re: How to proceed with attic storage

Hi Mitchell

Appreciate the interest

plan to fix lvl‘s or 240x45 blue pines between the wall and the beam at 450 intervals and drop the flooring on top of it, it will clear the existing joists and support beams by 150mm

Re: How to proceed with attic storage

In that case, you'd need to verify whether the wall and the steel beam can bear the weight of the new joists, flooring and stored goods, @shelldan08. You'd also need to check span tables to ensure the new joists can span the distance between the wall and the beam.

 

Mitchell

 

See something interesting? Give it the thumbs up!

Why join the Bunnings Workshop community?

Workshop is a friendly place to learn, get ideas and find inspiration for your home improvement projects