Workshop
Ask a question

The Bunnings Workshop community can help with your home improvement projects.

How to remove an internal wall?

Matkai
Cultivating a Following

How to remove an internal wall?

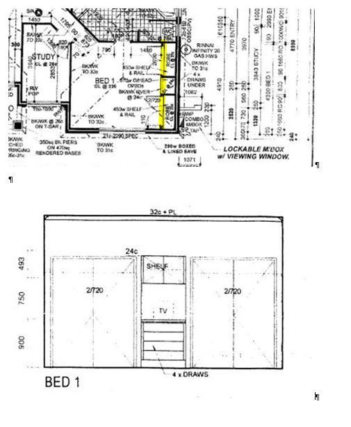
We are in the process of renovating our main bedroom, we have a built in robe along one wall, from what I can see from the plans it is not a load bearing wall, it appears to have a lintel across the top of the wardrobes and opening in the middle.  We are trying to think of the most cost effective way to get this removed.   If we get permission or the okay from a building inspector that the wall can come down, is this a DIY job?  I understand I will eventually need a brickie to cut the bricks on either side of the wardrobe to make them flush with the side walls, and also need a plasterer and gyprocker to fix the ceiling.  Hoping that we can do some of the demolition ourselves to help cut back costs?  Any advice or suggestions would be appreciated.  Plans.JPG

JacobZ
Bunnings Team Member
Bunnings Team Member

Re: Advice for internal wall removal

Hi @Matkai,

 

Thank you for your question about removing an internal wall.

Assuming the building inspector gives you the go ahead that it is safe to remove this wall, then demolition of a wall is a fairly easy process that is absolutely doable as a beginner but there are precautions that should be taken.

 

If there are any services in the wall, then they should be deactivated by a suitably licenced tradesman such as a plumber or electrician prior to commencement of demolition.

 

The basics of demolition are to cut things down into manageable sized pieces and remove them working top down to avoid anything heavy falling from a height.

 

If the wall is plasterboard with timber studs, you should start by cutting the plasterboard at the ends of the wall and then pulling it away from the studs in the largest pieces possible. You can then disassemble the timber stud frame by cutting them with a reciprocating saw or hand saw and then twisting and pulling them to disconnect them from the top and bottom plate, or you can simply knock them out of place with a sledgehammer.

 

If the wall is brick, then you can do most of the work with a sledgehammer and then clean up the edges with a Demolition Saw.

 

A tip I can offer is that demolition work can certainly be very fun as long as you are safe, but going wild and smashing everything to pieces becomes very old when you then have to pick it up. Safely removing things in the largest pieces possible makes the clean up much easier. 

 

Also, please remember to wear your personal protective equipment including gloves, eye protection, enclosed shoes (preferably steel caps), long sleeved shirts and long pants. 

 

If you wanted more specific advice closer to the date, please don't hesitate to reach out, I am more than happy to assist further if required.

 

Jacob

 

Why join the Bunnings Workshop community?

Workshop is a friendly place to learn, get ideas and find inspiration for your home improvement projects