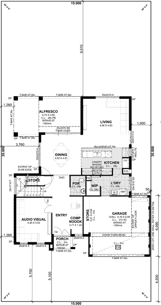
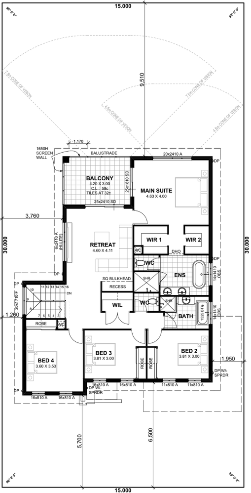
It's taken longer than expected to get our final plans sorted but we're finally there. Starting with a custom design then making it work from an existing plan from the builder meant we got what we wanted but it was very time consuming ensuring we thought of everything. I learned a lot from my previous build and ensured I took the time I needed to it right.
- Don't let builders pressure you into speeding things up. Remember you're the one handing over a huge amount of cash - so you're in control.
- Get everything you discuss in writing. Yes phone convos can be quicker but you're bound to run into a case of "No, I didn't say that" somewhere along the line and you'll be the one that suffers.
- Double and triple check that all your requests are completed correctly.
- Don't be shy about challenging variation quotes and goign for a better deal. Builders tend to drop about 30% on top of everything and just hope no one asks - but when you do you'll often find you'll get the price down.


From a prestart perspective the best thing you can do to be prepared is...have lots of money you're willing to spend 😋
- Think about what you can do yourself or pay a labourer to do after key handover because the builder prices are crazy.
- Builders need to meet minimum requirements such a tiling wet areas, etc so you can't rip everything out but there is a lot of money to be saved and it also means you can install exactly what you want rather than being limited to their range/suppliers.
- Naturally, you'll change your mind and if you do it after a certain point in the process your builder will want to charge you a few hundred dollars in variation fees or whatever. Don't pay this! Either they waive the cost and you spend more money in variations, or they charge you and you simply don't spend more money with them.
- Case in point - get everything in writing: We advised we wanted hobless showers early in the process and we were told to wait to make this change in prestaart. However when we got to prestart we were told it needed to have been done earlier and to do it now will cost $300 and require engineering review/approval. Needless to say, we refused to pay that $300 because we were told to wait. Again, don't let builders bully you into paying fees.
So between varuations, upgrades and removing things we could we ended up spending an extra $35k in prestart which was actually less than expected/budgeted so we are very happy with the result.
Our slab should be down very soon and we're still likely to get our keys before Xmas so it's all very exciting. I'll keep you posted on the progress and for those interested in more pics and updates you can follow us on Instagram @building.up.254 🙂