Workshop
Ask a question

The Bunnings Workshop community can help with your home improvement projects.

Renovation diary

KingStreetReno
Making a Splash

Renovation diary

Hi everyone, 

 

After 3 years of planning, our renovation finally started last week! We are turning our inner-city 2 bedroom,1 bathroom Victorian house into a 4 bedroom, 2 bathroom home. 

 

Week 1: Demolition
The guys spent the first 3 days removing the 80's extension which featured a horrible low roof (with beams) and exposed brick walls. This will make way for the new kitchen/living/dining room and second storey. All that is left of the current house is the original Victorian part which features 2 bedrooms, a dining room and hallway. 

 

 IMG_2733.jpg

IMG_2595.JPGHouse.jpgDownstairsDownstairsUpstairsUpstairs

Jason
Community Manager
Community Manager

Re: Renovation diary

How exciting @KingStreetReno! Your plans look fantastic.

 

I look forward to seeing regular updates about your renovation project. Many thanks for sharing.

 

Jason

 

See something interesting? Give it the thumbs up!
Jason
Community Manager
Community Manager

Re: Renovation diary

How is the project going @KingStreetReno?

 

It would be great to see an update when you get a chance.

 

Jason

 

See something interesting? Give it the thumbs up!

Re: Renovation diary

Hi @Jason, here are a few photos from the last few weeks. The builders have been full steam ahead and the slab, brickwork and frame is now complete. 

 

This week they are replacing the existing red roof and building the new roof in Colourbond Shale Grey.

 

We're also now working to finalise our kitchen and make more design decisions with the help of an Interior Designer as we are stuck on a few decisions like colour.

 

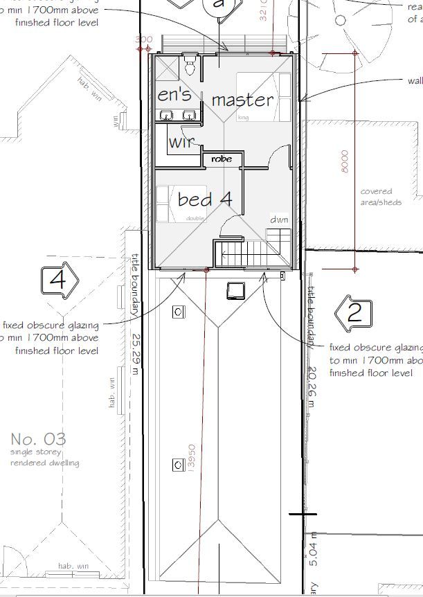
Master bedroom with custom windowMaster bedroom with custom window

BF19E456-6707-436D-A2A6-0485B95FDF0C.jpeg

 Downstairs living areaDownstairs living area

 

Second storeySecond storey

 Second storey ensuiteSecond storey ensuite

 

Re: Renovation diary

Final kitchen design...

Cabinets: Shaker profile
Colour: Stone Grey
Benchtop: Fresh Concrete 
Door hardware: A mixture of traditional shaker cup handles and knobs

 

We are doing double-sided storage in our island bench to store away toys in our loungeroom.

Appliance cupboard & fridgeAppliance cupboard & fridgeCooking areaCooking areaKitchen island - toy storageKitchen island - toy storageKitchen islandKitchen islandShaker door hardwareShaker door hardwareStone GreyStone GreyFresh Concrete by CaesarstoneFresh Concrete by Caesarstone

 

Re: Renovation diary

Thanks for the update @KingStreetReno. It's great to see your progress. It is going to look fantastic when it's finished. 

 

What have been some of the challenges or lessons so far?

 

Jason

 

See something interesting? Give it the thumbs up!

Re: Renovation diary

@Jason The actual build has been going great with minimal issues. 

The biggest lesson has been to hire an interior designer before the build starts if having issues deciding on certain things. Our builder likes to work at lightening speed and has been frustrated at us for not confirming things fast enough.

 

This project has been going on for 3 years and we've changed our mind in that time. We've had a lot of issues sourcing the kitchen colour we want (all of our inspiration is British, so hard to colour match) and our cabinet maker is putting the pressure on to lock everything in! I just found a company called The Stylesmiths who charge by the hour for interior designers, so it is much more affordable than hiring someone for the whole project.

 

We have now briefed the designer to finalise kitchen cabinet colour and benchtop, design our master WIR to maximise space, choose front door colour and master bedroom feature wall colour which we are doing in Easycraft panelling. 

 

Inspiration: 

Easycraft PanelsEasycraft Panels

 

 

 

Why join the Bunnings Workshop community?

Workshop is a friendly place to learn, get ideas and find inspiration for your home improvement projects