Workshop
Ask a question

The Bunnings Workshop community can help with your home improvement projects.

Whole house renovation in a small budget

Tutu
Getting Established

Whole house renovation in a small budget

Dear all,

I am purchasing a house with a very bad condition and want to renovate it mostly by DYI to keep the budget low. Can you suggest to me what is a suitable budget to renovate these major parts of the house? Is it possible to DYI?

 

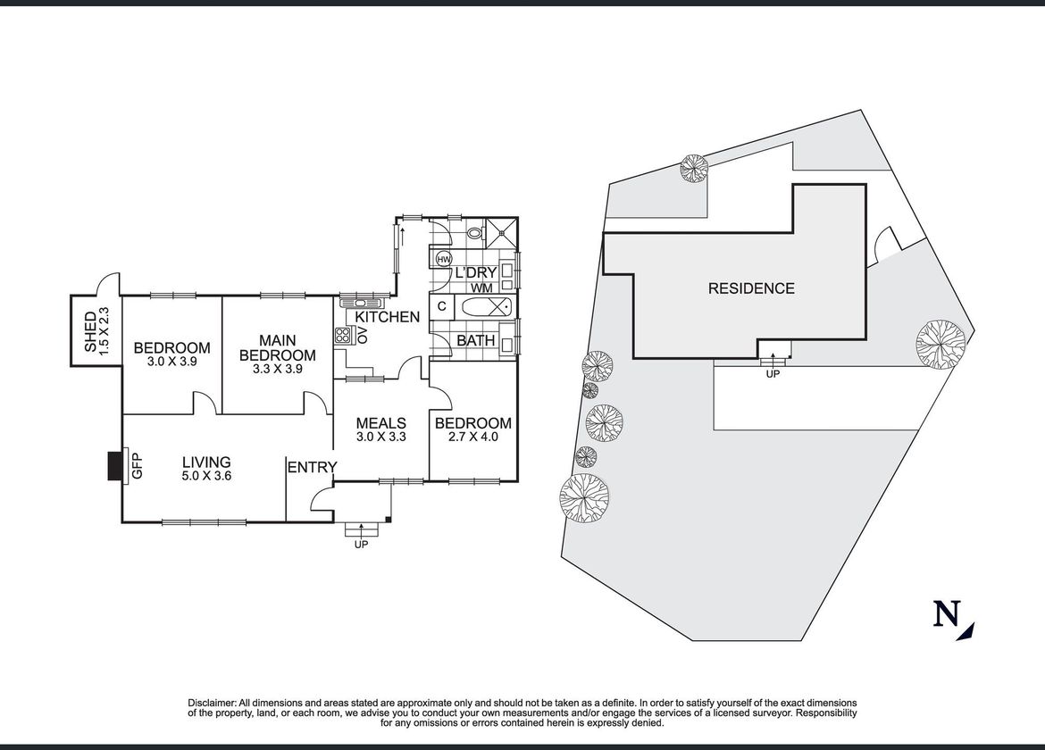
This is the house plan 

 

1.jpg

1. Paint:

- We want to paint all the walls of the house both indoor and outdoor.

How much it would take for the material from Bunning if we paint by ourselves?

- We want to paint the wooden floor for the whole house. Can you suggest which kind of paint is good and how much it would take for the whole house finished? Can we DYI it with the video tutorial?

How long it may take to finish all the paint?

 

2. Living room:

We want to make over the heater designs 

2.jpg

 

2. Kitchen

3.jpg

We plan to buy an old kitchen cabinet on eBay or gumtree and then install it by ourselves. However, if we can find suitable options in Bunning and DYI in our kitchen, it would be great.

Can you suggest suitable designs and products for this kitchen?

How much total it may cost for the whole kitchen renovation?

How much it would take if we get professional help from Bunning?

 

3. Bathroom

4.jpg

We want to paint our bathroom, bathtub, and do the bathroom makeover, also want to DYI bathroom cabinet? 

How much it may take for this bathroom renovation?

Can you suggest suitable materials from Bunnings?

 

Totally, how much is the suggested budget for the whole house renovations?

Which parts can DYI from Bunning material?

Which parts should ask for professional builder support?

Thank you very much!

Best,

Tutu

 

MitchellMc
Bunnings Team Member
Bunnings Team Member

Re: Whole house renovation in a small budget

Hi @Tutu,

 

Interior wall paint ranges between $11/litre - $14/litre if buying in 15-litre containers. My suggestion would be Dulux Wash Wear 15L Vivid White Low Sheen Paint.  For the exterior, I would recommend Dulux 15L Weathershield Plus Super Hide Low Sheen Strong White Exterior Paint which will work out to be $18/litre.

 

You'll use 1-litre per eight square meters on average. If you work out the square meterage of all your walls then you can get a rough estimate of how much the paint will cost.

 

I would not recommend painting the timber floors. It can certainly be done but you should consider refinishing the floors and coating them in a clear coat. It looks like there are some amazing timber floors in the property and it would be a shame to paint over them. If you are sure you want to paint the timber floors I will attempt to find a suitable product, but you need to be aware that painted floors have an increased chance of damage and wear.

 

How long it takes will really depend on how fast you can work. For a whole-house interior and exterior, you'd be looking at at least 10 nine-hour days. This takes into account prepping the surfaces, masking off, cutting in, dry times before second coat etc. I'd give yourself a day to complete each room.

 

In your living room did you want to make a mantlepiece for the existing heater or were you after another way to improve the look of the area?

 

If you provide us with the dimensions of the kitchen/bathroom then I trust our helpful members will be able to put a design together and give you an estimation on the cost. You can certainly take your plan with measurements into a Bunnings store and they can put a design together for you. The cost will come down to how many cabinets you want, what type of finishes and whether you need to move plumbing and electrical work.

 

Depending on what you skill-set is there are many things you will be able to D.I.Y., but you'll need to employ professionals to move electrical and plumbing work.

 

Some discussions you might be interested in reading are Bathroom and Laundry/Bathroom renovation in old home with no toiletDiary of a bathroom renovationFeature wall and Preparing a Painted Wall for Painting Large Gaps in Paint. You might also like to check out the Top 10 most popular renovation projects and How to paint like a professional by @Peggers.

 

Some great step-by-step D.I.Y. articles to view include How to paint your houses exterior and How to plan a bathroom renovation.

 

Let me also mention @Nikkaz to see if they would like to join the conversation as they have done plenty of interior and exterior painting in their own home.

 

Mitchell

 

 

 

See something interesting? Give it the thumbs up!
Tutu
Getting Established

Re: Whole house renovation in a small budget

HI Mitchell,

 

Thank you very much for your answer. The tutorials are very easy to understand and I confident that I can able to follow.

Can you suggest me some products for refinishing the floors and coating them in a clear coat? Do you have any tutorial as well?

The kitchen size is 3.0 x 2.7

The bathroom is 2.7 x 2.0 

Please provide me with a suitable plan and estimate the budget. 

Thank you very much!

Best,

Tutu

MitchellMc
Bunnings Team Member
Bunnings Team Member

Re: Whole house renovation in a small budget

Hi @Tutu

 

My recommendation for a clear coat on floors is Cabot's CFP and it is available in a water-based version that has a lower odour and is easy clean-up.

 

Here are a couple of step-by-step D.I.Y. articles on How to sand timber floors and Tips for using a floor sander.

 

Mitchell

 

 

 

See something interesting? Give it the thumbs up!
Tutu
Getting Established

Re: Whole house renovation in a small budget

HI Mitchell,

 

Is that possible to rent those machines? 

Also, I am interested in this kitchen style, is this package fit our kitchen and is that cover all the parts of the finished look like the catalog

https://www.bunnings.com.au/classic-chic-kitchen_bbundle0141

 

Thanks,

Tutu

MitchellMc
Bunnings Team Member
Bunnings Team Member

Re: Whole house renovation in a small budget

Hi Tutu,

 

Those machines are available to hire from our stores. You can view the available tools for hire from Bunnings on our website.

 

Mitchell

 

See something interesting? Give it the thumbs up!
Tutu
Getting Established

Re: Whole house renovation in a small budget

Thanks Mitchell,

 

Great to know. So excited to get the plan for bathroom and kitchen from your team so that I can start my project soon.

 

Thank you!

Tutu

ProjectPete
Kind of a Big Deal

Re: Whole house renovation in a small budget

What an exciting time/project @Tutu !

 

@MitchellMc beat me to it with the responses to your questions and I don't have too much else to add.

 

I always use Dulux paints for their high quality and completely agree with sanding/clear coating those floorboards. Not only would it be a shame to lose their natural beauty, but the refinishing as Mitchell has suggested will last much longer than painted floors.

 

Personally I've be creating a feature of that heater space with a) a new heater or better still a fire place (budget permitting of course), and b) wall panelling/cladding such as the easycraft EasyVJ option as it will make a dramatic difference to the area and is very cost-effective. Easycraft do have a much larger range which you can find most on Bunnings website otherwise the easycraft website.

 

Hope this helps and super keen to see how ti all turns out!

 

----------
Handy and helpful
Instagram @projectpete.diy @at.home.rosehill @kayudesignco @aspirebamboo

Why join the Bunnings Workshop community?

Workshop is a friendly place to learn, get ideas and find inspiration for your home improvement projects