Workshop
Ask a question

The Bunnings Workshop community can help with your home improvement projects.

Custom kitchen rebuild with extra storage

Itai
Becoming a Leader
Itai
Itai
Becoming a Leader

This carefully thought-out kitchen renovation replaces a U-shaped bench layout with an island set-up and lots of clever storage solutions.

 

 

DSC_6671.JPG

 

The project

 

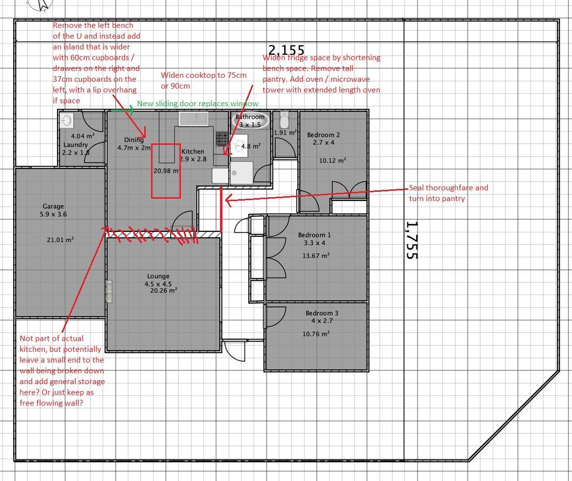
I had a lot of things to consider when planning this kitchen renovation – including whether to knock down the wall between the kitchen-dining area and the lounge room, and whether to turn the dining-room window into a sliding door to the backyard.

 

This was the original shape of the kitchen and dining area. 

 

IMG-20191002-WA0011.jpg

 

IMG-20191002-WA0020.jpg

 

Screen Shot 2020-11-17 at 16.20.46.png

 

Screen Shot 2020-11-17 at 16.20.58.png

 

IMG-20191003-WA0004 copy.jpg

 

And these were my initial thoughts on what to do with it.

 

Kitchen idea.jpg

 

I was concerned that closing off that thoroughfare would limit the functionality of the house by making it so that you can only get to the kitchen via the lounge. We decided against that.

 

We also thought the kitchen island might be better oriented like the one in green below:

 

Capture.PNG

 

I began playing around with the Kaboodle planner to get an idea of what I might do with the space.

 

I came up with two options: a G-shaped layout... 

 

G Kitchen 2.PNG

 

G Kitchen.PNG

... and an island layout.

 

Island Kitchen 2.PNG

 

Island Kitchen.PNG

We decided to go with the island option.

 

Screen Shot 2020-11-17 at 16.24.16.png

 

Freshly plastered, basecoated and painted walls. I didn't do a second layer of paint where the cupboards were going to hide the walls.

 

Screen Shot 2020-11-17 at 16.24.35.png

 

Screen Shot 2020-11-17 at 16.23.53.png

 

My wife putting together the cabinets.

 

Screen Shot 2020-11-17 at 16.24.08.png

 

Screen Shot 2020-11-17 at 16.25.19.png

 

Hanging the wall cabinets

 

Screen Shot 2020-11-17 at 16.25.37.png 

Lining up the island.

 

Screen Shot 2020-11-17 at 16.25.52.png

 

Screen Shot 2020-11-17 at 16.26.00.png

 

Screen Shot 2020-11-17 at 16.26.18.png

 

 Fitting island drawers.

 

Screen Shot 2020-11-17 at 16.26.49.png

 

 Fitting pantry drawers.

 

Screen Shot 2020-11-17 at 16.27.14.png

 

Choosing the benchtop wood. I had the benchtop custom made by a factory based on my dimensions. With no margin for error it fit perfectly!

 

They even dropped it off and I had them sand and seal it on the spot. What was really cool was that I got to go to the wood yard and choose the bits of timber and the order they were laminated in, so I got a benchtop exactly to my spec.

 

Screen Shot 2020-11-17 at 16.27.52.png

 

Figuring out where plumbing and drawers will go.

 

Screen Shot 2020-11-17 at 16.28.06.png

 

Screen Shot 2020-11-17 at 16.28.17.png

 

Getting the benchtop ready for cut-out.

 

Screen Shot 2020-11-17 at 16.28.42.png

 

 Prepping for tiles. Don't basecoat the plaster – it will prevent the tiles from adhering properly.

 

Screen Shot 2020-11-17 at 16.28.54.png

 

Tips for kitchen renovation projects

 

Some lessons learned along the way:

 

  • If you sell your old kitchen you can actually charge someone to demolish it for you. 

 

  • Levelling cabinets is much harder than I thought, especially when the walls are actually wavy (you'd never know without a straight edge). They are definitely not square – there's about a 2cm difference between the top and bottom of the tall cabinets at its worst. Also, the difference changes depending where you are on the wall.

 

  • You should not paint freshly laid plaster that you intend to tile! I just thought I'd seal it with basecoat for extra protection, then I learned that this stops the tile adhering correctly. I spent hours sanding it back and kept finding fine dust for ages.

 

  • Installing an island is much simpler than I thought.

 

  • Make sure you measure the width of the top, bottom and middle of tall cabinets before permanently fixing the backing on. Wood tends to bow over that length.

 

  • Installing an oven and stove is much easier than you'd think – just make sure that you have licensed tradespeople for electrical and gas work.

 

  • You can cram a lot under the sink. Note the low-profile drawer I am using above the bins. It fits a bunch of flat stuff, and tall bottles right on the front. I cut out a small dent on the back of the drawer where the sink drain is.

 

  • Beginners will struggle with the Dunlop rubber-based ready-made tile adhesive. You will get it everywhere, and it's hard to remove once dried – especially when you're trying to clean up the spaces in between the tiles before grouting. It's easier to use a mastic or cement-based tile adhesive – you can scrape it off relatively easily with a scraper.

 

  • Get funky with your designs. The beauty of flat packs is that if you don't like the doors, or get bored of them, you can easily change them. Kaboodle has an amazing range. 

 

  • Cover panels get very expensive very quickly when you deviate from the base colours. Try make your own. MDF wood is great, except near a sink. Remember to use suitable screws so they don't just chew up your MDF. Alternatively, think about using marine plywood for a upmarket wood finish if your benchtop is stone or laminate.

 

  • All in all, installing a kitchen overall is much easier than you think! We did the entire thing (except for electrical and benchtops) in three to four days. 

 

DSC_6673.JPG

 

I'm quite proud that I did the whole kitchen myself. The only thing I didn't do was replace the plaster once we tore out the old kitchen (I would have done that too but we already had a plasterer in the house for another part of our renovations).

 

I ended up measuring and picking the cabinets myself, choosing the colours with my wife.

 

The blue cover panel on the front of the island is custom, made from some 9mm MDF cut to size, a spray-paint primer and enamel spray paint from Bunnings. The spray paint gave it a mirror finish! 

 

We wanted lots of storage, so we went with a variety of internal drawers and gadgets to maximise storage space. Every cupboard except the one on the front of the island has hidden or smart storage of some sort. 

 

The hardest part of all of this was getting it square. Even now, it's not perfectly level, but the bubble is within the lines, so it should be good. I made sure the sink and oven were right, though.

 

DSC_6674.JPG

 

DSC_6675.JPG

 

DSC_6676.JPG

 

DSC_6677.JPG

 

DSC_6672.JPG

 

Before and after

 

IMG-20191002-WA0010.jpg

 

DSC_6670.JPG

 

More inspiration for your kitchen

 

Experienced Bunnings Workshop contributor Adam_W has put together this handy guide to planning a kitchen renovation. You can also check out our Top 10 most popular kitchen projects.

 

KitchenHero.png

 

If you just need a quick kitchen refresh, check out our collection of 10 kitchens transformed with paint. You can begin transforming your own kitchen with our step-by-step video guides to painting kitchen cabinets and painting a tiled splashback.

 

Let us know if you need a hand with your kitchen project. We're here to help.

Comments
Remarka6le
Amassing an Audience

This is awesome, @Itai . I think the Island style was an excellent choice compared to the G-style alternative. I also love the cooktop on the island, it's something my wife & I struggled thinking if we wanted that as well, do you any issues with it being there? Also how are the handles? I've never known someone to get them and I'm interested to know how they've held up.

 

We also went down the Ikea design route (before a cabinet maker decided he could beat their price and quality), so I see a lot of similar things that will be in our own renovation (like the bins and dishwasher). Once we found out Ikea had limitations on stove, oven & bench sizes, it really solidified our need to go down the custom route, originally with the custom bench's first before deciding on the kitchen as a whole. 

 

 

Itai
Becoming a Leader

Hey @Remarka6le 

We're still loving having the cooktop on the island. It's great when you have guests over and can talk to them. It's even better when you're hosting a big dinner because it doubles up as a food warmer on the low settings when it's serve yourself off the island. The literal only gripe I have is that there's no splash back when you fry something with lots of oil spatters, just means a little extra cleanup and don't keep anything behind it you don't want splatters on. But that's not something that would make me do it differently.

 

Are you talking about the leather handles? They're brilliant, 2 years in and not even the slightest sign of wear & tear.

 

What sort of limitations did you run into with Ikea? We actually used the Ikea ovens and cooktop, they've been great. Made by Electrolux. The bench itself we got custom made off someone I found on Gumtree. Perfectly made to shape, with very tight clearances. I even went to the wood yard to choose the pieces of timber I liked the most. And it was cheaper than the ones in Ikea / Bunnings :cheeky:

 

The only other custom piece in my kitchen is the wine rack, as I couldn't find anything to fit there. So I made it out of a cover panel.

But I do love the flat-packs as there is so much designed to fit them. Totally understand though if it just doesn't meet your requirements, and am sure you will love your end result.

Remarka6le
Amassing an Audience

Hey @Itai , 

 

The issues we ran into were that none of their systems could accomodate 900mm appliances (the oven) and it limited where we were able to place it, as we wanted it higher up so as to be level with the benchtop rather than below it. We were told that if we were to fit our 900mm cooktop, we would have to cut into shelves and that void some warranties. Bit weird :/. 

One of the primary things was the bench sizes, mostly regarding the Island. We're wanting a large island, but their largest bench would have meant having an ugly line through the middle of our island where their two benches connected, it really put us off the modular system and kick started conversations that put us into the fully custom route. 

 

 

Itai
Becoming a Leader

Hey @Remarka6le 

 

Yeah, that totally makes sense, I remember running into this issue when I looked at the 900mm appliances. Though I only looked at the cooktop, I never considered 900mm ovens, as I figured for most of our cooking, we wouldn't need more than a standard 600mm oven and getting 900mm would be overkill and use more electricity to heat up the larger space every time (That is my assumption, not something I actually looked into). So I opted for a second oven instead for the odd occasion where I need more, with the bonus of different temp controls and even more space :smile:

 

In terms of fitting the cooktop, that's right, you'd have to cut into the shelves. I was less worried about that, and was going to do that, until I ended up getting the Ikea stove which obviously fit perfectly, because it was much cheaper than the competition with all the features we needed.

 

Totally agree about their bench sizes being weird. That's why I went the custom route. If you're Melbourne based, and looking for wood, I can PM you the details of the guy we got our benchtop from. There are no join lines anywhere, even though it's made from a number of slices of wood.

Why join the Bunnings Workshop community?

Workshop is a friendly place to learn, get ideas and find inspiration for your home improvement projects