Workshop
Ask a question

The Bunnings Workshop community can help with your home improvement projects.

How to convert garage into a second living room?

ivanptr
Making a Splash

How to convert garage into a second living room?

Hi everyone, 

 

Our living area is very small so we are now planning to convert our garage into the 2nd living room. Now the door between garage and the current living room is a single pocket door.

 

But after the conversion, it seems to be better to use a wider door to open up space when there are two living areas.

 

But we are a bit confused on which type of double doors we should use -

- Double sliding pocket doors ?

- Double barn doors ?

- Or any other type of door would suit better?

 

Its our first time doing this kind of project.

 

Any any advice would be much appreciated🫂

 

IMG-20230713-WA0004.jpg

IMG-20230713-WA0007.jpg

  

MTXX_MH20230713_181111962.jpg

IMG-20230713-WA0006.jpg

IMG-20230713-WA0005.jpg

  

 

 

 

Noyade
Home Improvement Guru

How to convert garage into a second living room?

Good morning @ivanptr 

 

How's your wall coming along?

I was thinking - medium sized angled brackets, strategically placed on the walls and ceiling. Not necessarily connected to studs/ceiling wood - as this wall is non-structural and for appearance only? Like a Hollywood/stage prop?

And like Hollywood - that famous scene in the movie Witness where the Amish fabricate the barn wall on the ground, then raise into position with many hands could also be replicated and attached to the brackets. Clearance would be needed - but this will be eventually covered with gyprock and plaster.

And this 'clearance' will circumvent having to rebate your wall studs for your 'problem' areas as you photographed above (numbered #1 #2 and #4).

Bottom line is, it will easily come down with the minimum of fuss and little damage to the walls - should you tire of the room and want the garage back.

 

Is the garage door watertight? No water enters when it rains?

 

Please let us know how you're getting on - or if completed, share photos.

Cheers.

 

 

ivanptr
Making a Splash

Advice on Floor Plan Design (1st time planning garage conversion)

Hi our drafter finally returned us with a drawing plan for our project (Converting a garage to 2 bedrooms + living room) and he asked if he missed anything.

 

We wonder if the positions of both beds and wardrobes are good?  or do we miss anything else?

Just want to see what do you guys think :

ivanptr_0-1691979998360.png

 

 

ivanptr_1-1691980021842.png

 

 

ivanptr_2-1691980038929.png

ivanptr_3-1691980230281.png

ivanptr_0-1691980500159.png

 

 

 

 

 

 

MitchellMc
Bunnings Team Member
Bunnings Team Member

Re: Advice on Floor Plan Design (1st time planning garage conversion)

The plans look good, @ivanptr. I can't see any issues with those.

 

You might want to flip the beds around so their heads are on the opposite wall instead of directly in line with the door. Better Feng Shui that way.

 

Mitchell

 

Feng.png

See something interesting? Give it the thumbs up!

Re: Advice on Floor Plan Design (1st time planning garage conversion)

@MitchellMc 

 

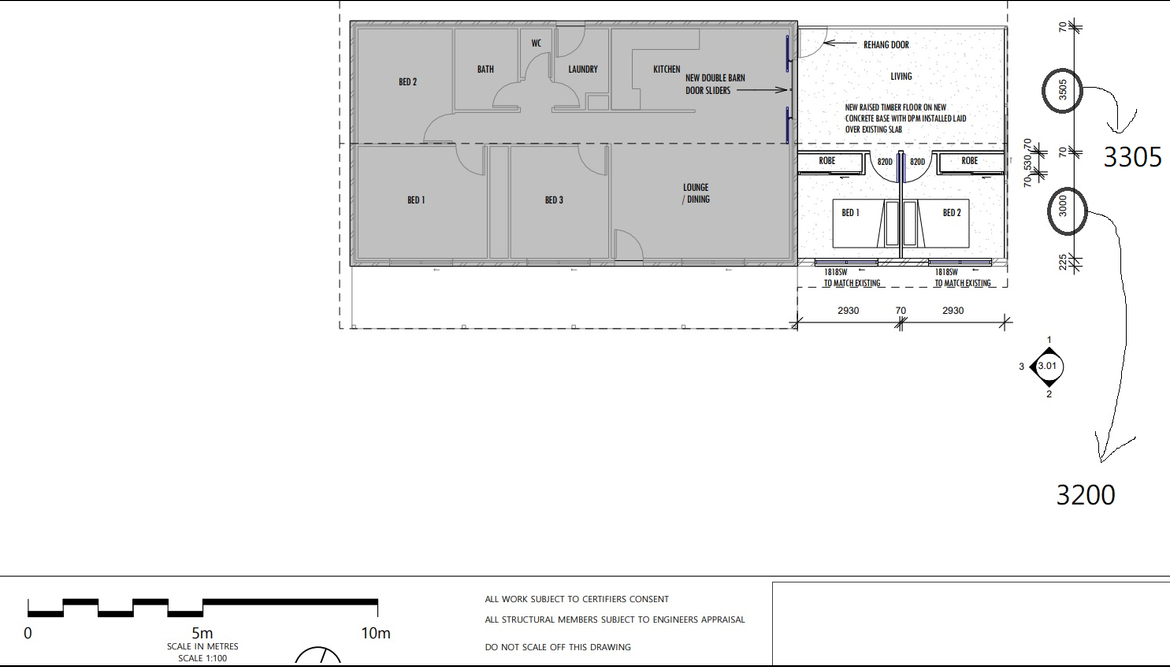
The problem is , we have been chasing the drafter for many times until we got this first draft. Now we just want to change the length of both bedrooms from 3000mm to 3200mm.

 

Do you think we can use photoshop just to replace the two figures ourselves and then send the amended plan to certifier?

ivanptr_0-1692147487513.png

 

 

But then the scale of the bedrooms on the drawing wont be correct.

 

We reckon if this would be a problem for the certifier / builders. They wont care, right? 

 

It says "do not scale off this drawing" so it seems the scale doesn't have to be correct

EricL
Bunnings Team Member
Bunnings Team Member

Re: Advice on Floor Plan Design (1st time planning garage conversion)

Hello @ivanptr 

 

I don't recommend altering the drawing with photoshop. Should the draftsperson be contacted by the council, the drawing you submitted and the drawing they have will not be the same and your application will not pass due to the discrepancy. 

 

I suggest to keep trying to contact your draftsperson so that you can properly request for the change. They will also be able to tell you if the change is possible or if it will affect other parts of your design.

 

If you need further assistance, please let us know.

 

Eric

 

See something interesting? Give it the thumbs up!

Why join the Bunnings Workshop community?

Workshop is a friendly place to learn, get ideas and find inspiration for your home improvement projects