Hi all,
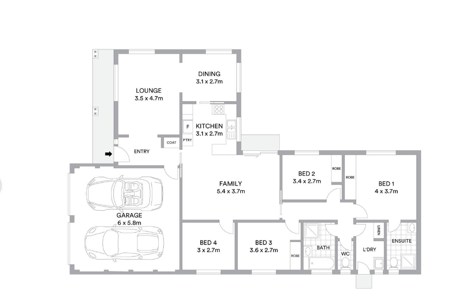
Looking for any advice or suggestions for our kitchen reno. The plan is to knock out the wall between the dining and kitchen areas and make one long galley style kitchen (by filling in the wall in between the current dining space and living room). The difficulty is that the two windows marked in blue are full length windows so we can't just use both full walls for the benches without changing the windows to half height. We would really like to avoid doing that as it will lead us down a rabbit hole of then trying to fill in gaps in the brick exterior or come up with a cladding style option for the whole exterior wall, which would just blow costs way out. Our thinking was that we could do one long bench along the back wall and then a shorter bench under the half height window, finishing just before the full length window starts. My concern is that it will look really strange and be a complete waste of space in the corner. Any suggestions on how to make the best use of this space would be so appreciated!

