Workshop
Ask a question

The Bunnings Workshop community can help with your home improvement projects.

Ideas for a cheap makeover

Isobel
Amassing an Audience

Ideas for a cheap makeover

 

Hi everyone.

 

I am thinking about purchasing this property as the "bones" seem pretty good but there's obviously not much street appeal at the moment! I wouldn't have a much money to spend so I'm interested to hear ideas for improving the front. What would you do with it?

 

house1.jpg

 

 

ProjectPete
Kind of a Big Deal

Re: Ideas for a cheap makeover

Depends on the look/style you're going for, can you give some more detail? It can be the difference between distarting or restoring something,colours, etc
----------
Handy and helpful
Instagram @projectpete.diy @at.home.rosehill @kayudesignco @aspirebamboo
Kermit
Amassing an Audience

Re: Ideas for a cheap makeover

Some would say render it to modernise but I like the brick and it's maintenance free so I wouldn't do it. 

 

The number one thing that stands out to me is the air conditioning units. They need to be moved and/or hidden. 

 

Other obvious things are painting the eaves and window frames, and removing the dated exterior blinds and replacing the curtains. Removing all the concrete and the shed and planting a modern garden and path would also help improve street appeal. And the roof looks like it might need some attention - possibly cleaned, repointed, maybe even re-sprayed/sealed.

 

I'd be interested to hear people's ideas for the porch. It is obviously very small but I wouldn't really like to remove the balustrade as it looks original?

 

One more tip, have a good walk around the local area as you are bound to find similar homes that have been renovated and pick up some tips (and things to avoid!)

Re: Ideas for a cheap makeover

I actually quite like painted brick.  Cheaper than render.  I've seen it a bit in QLD. I would build low fence along the front of the building out of recycled decking.  It would hide the ugly airconditioner and you could add some plants giving the effect of a raised garden bed.

 

You can also use textured paint on the concrete with a stencilled pattern which is way cheaper than putting down pavers.  

Hay
Building a Reputation

Re: Ideas for a cheap makeover

A couple of very simple ideas from me. A row of 3 tall-ish pot plants on the ground in front of the porch. A little garden of some sort around the letterbox and maybe paint the letterbox in your new scheme.
Changing the interior curtains will make a big difference.
Hay
Building a Reputation

Re: Ideas for a cheap makeover

I thought this might be of interest: 13 ways to hide outdoor eyesores

KingStreetReno
Making a Splash

Re: Ideas for a cheap makeover

I recently attended a one day 'renovating for profit' workshop with Homes+ Magazine. The main speaker was Cherie Baber (who owns her own business 'Renovating for Profit' and is on The Living Room on Channel 10).

 

She had the following tips for improving street appeal on a budget:

 

1. Build a fence - she had an example of a cheap fence that she had built using aluminum roofing

2. Plant a garden bed at the front (ideally using plants that already exist on the property)

3. Paint the driveway http://www.bunnings.com.au/diy-advice/paint/how-to-paint/how-to-paint-a-concrete-driveway

4. Add screening around the entrance (low cost, but really gives the home a modern look)

5. Spray paint the bricks. I recently spray painted my fence and it was super easy!

 

I would also remove the external blinds and paint (or replace) the letterbox.

 

Here is an article that she wrote for Homes+ with examples:

http://www.homestolove.com.au/exterior-makeover-how-to-add-value-to-your-house-in-5-steps-1539

 

Isobel
Amassing an Audience

Re: Ideas for a cheap makeover

Here's plan B:

 

PlanB.jpg

 

Any ideas for this one would also be welcome.

 

I'm thinking painting the brick and the concrete driveway and getting rid of the horrible laserlight roof over the porch and the driveway gates. Not sure about the fence. And maybe timber shutters for the windows?   

Kermit
Amassing an Audience

Re: Ideas for a cheap makeover

Yes, I would get rid of the polycarbonite roof and painting the concrete would help. Again, I would think carefully about painting or rendering the house, although I admit most people don't like red brick.   

Isobel
Amassing an Audience

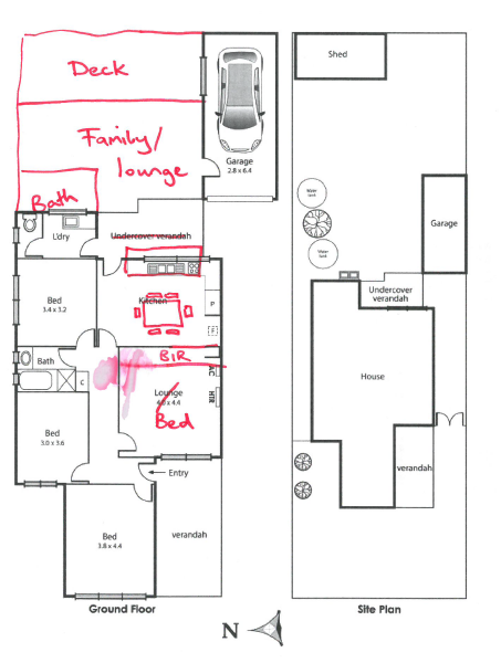
Re: Ideas for a cheap makeover

floorplan.png

Starting to like Plan B better for the long-term too, there seems scope for a major reno out the back - adding new rooms without having to change too much.

Why join the Bunnings Workshop community?

Workshop is a friendly place to learn, get ideas and find inspiration for your home improvement projects