Workshop
Ask a question

The Bunnings Workshop community can help with your home improvement projects.

How to build a bulk head ceiling for a media room?

nirmal1988
Cultivating a Following

How to build a bulk head ceiling for a media room?

Hi All,

 

I am planning on building a Bulk Head (Don't know if it is same as Tray) ceiling for my media room. 
Any one here has tried their hand on building one themselves ?

 

The thing that concerns me the most is,  I have never drilled into walls/ceiling before.  I do have a stud finder, but I am not sure I can rely on them 100% to know if there are any pipes/wires behind the plasterboard.

Second thing is the weight of the whole set up. My plan is to attach wooden/metal frames attached to ceiling and wall. Then cover then with plasterboard/panels. The plasterboards will some downlights & LED strips attached to them. Do I really have to be concerned with the weight. My room is 4.5m(l) x 3m(w). Attaching a picture of what I want to achieve.

 

Finally, is it really a DIY for a beginner ? Should I get a pro ?Tray-ceiling-lighting-idea-1.jpg

TedBear
Kind of a Big Deal

Re: How to build a bulk head ceiling for a media room?

Just to kick the conversation off, @nirmal1988 , I have never dared tackle such a task, but I was interested in how a builder put up similar trimming when we had our kitchen updated. He first made up a framework using plaster corner trims, hung from the ceiling (where timber was) and fixed to the walls where the plasterboard would need to join.Then he cut and attached plasterboard to them, trimmed it up and it looks great. Has been up for many years now. 

Here is the link to that section of Bunnings supplies, to clarify (I hope) what I am describing.

https://www.bunnings.com.au/products/building-hardware/building-boards/plaster-accessories/angle-pla...

I am curious to see what advice unfolds. 🐻

nirmal1988
Cultivating a Following

Re: How to build a bulk head ceiling for a media room?

Thanks @TedBear , I am also eagerly awaiting advices ! 

EricL
Bunnings Team Member
Bunnings Team Member

Re: How to build a bulk head ceiling for a media room?

Hello @nirmal1988 

 

Thank you for sharing your question about how to build a bulkhead ceiling for a media room.

 

It's great that you've received excellent advice from @TedBear. Using a Ceiling Batten System is one way of creating a frame for the ceiling cove. Making a small ceiling cove is like making a shelf, what's important is that the timber is securely screwed into the stud wall to support the weight of the structure.

 

However, building it out of timber is also possible. I recommend using light timber such as Clear Pine FJ Laminated Panel 1800 x 600 x 18mm for the panels of the cove. You can also use MDF Panels for larger applications. I've placed some examples below for you to have a look at. If you feel that this project is beyond your current skill set, I suggest engaging the services of a professional to build one for you.

 

Let me tag our experienced members @tom_builds and @Brad for their recommendations.

 

Here is a video that shows you the Knauf Ceiling Systems Application: 

 

 

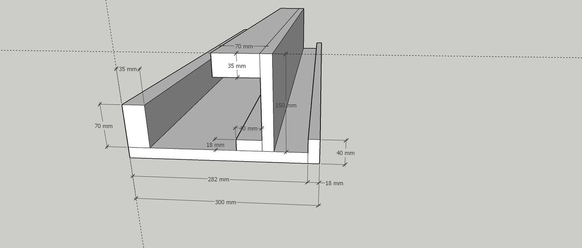
Here are some sample drawings of ceiling coves. Please note that the measurements are for reference only.

 

ceiling cove.jpgceiling cove2.jpg 

 If you need more advice and information, please let us know.

 

Eric

 

See something interesting? Give it the thumbs up!
nirmal1988
Cultivating a Following

Re: How to build a bulk head ceiling for a media room?

Thanks @EricL, That was really helpful.
Let me read through them in detail again and think about a plan.

Why join the Bunnings Workshop community?

Workshop is a friendly place to learn, get ideas and find inspiration for your home improvement projects