Hi All,
I am a first-time home buyer and would like to remodel/renovate and extend my house.
I have plans to live in this house for long and hence am looking for a complete remodel.
I would be getting the garage removed as it is a metal garage and would be having a carport instead.
I am open for up to 3 meters of extension towards the north to get a good open plan living space.
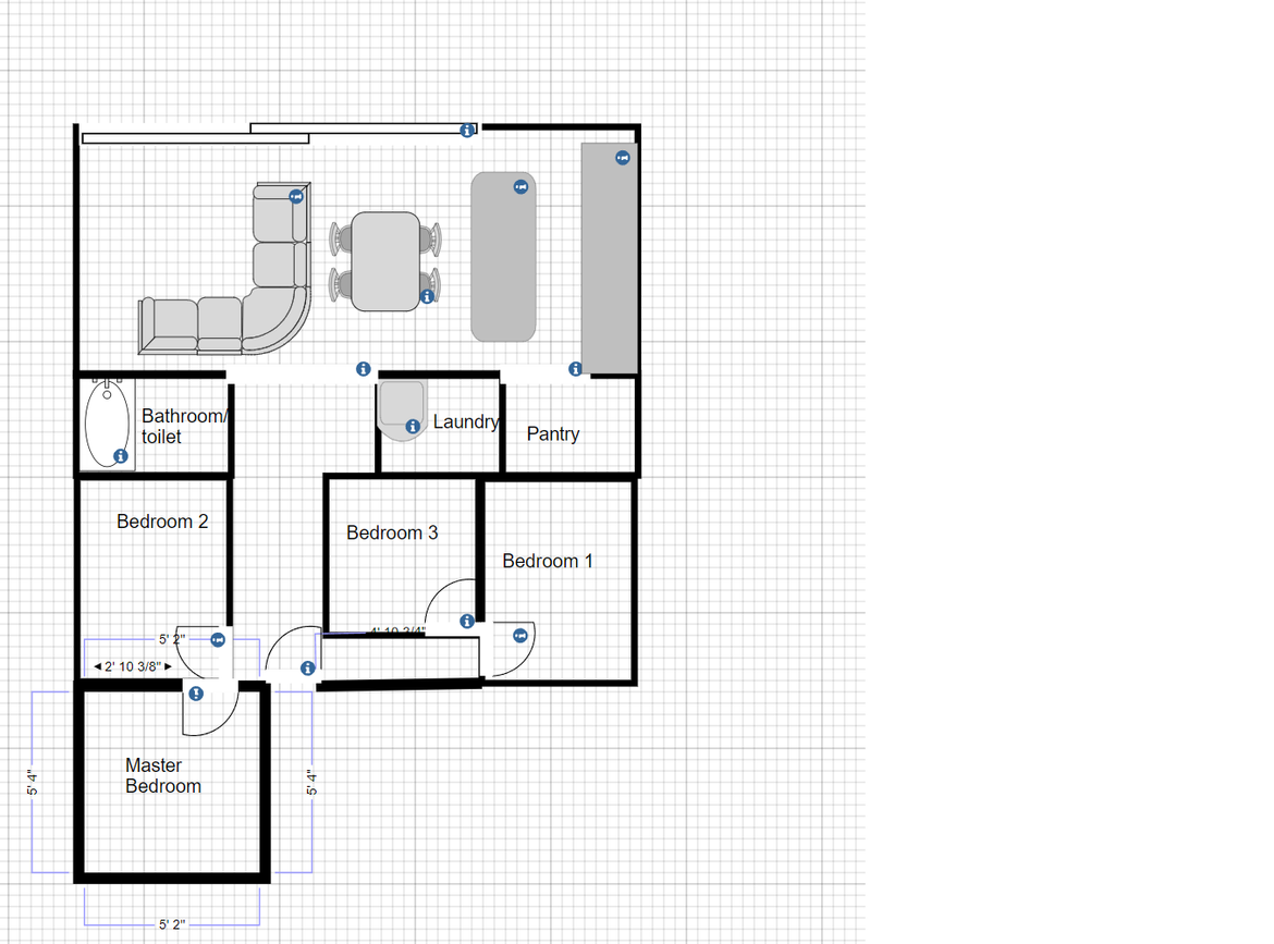
Below is the current layout of the house.
Current layout of the house
I want to have the living dining area and kitchen towards the north to get ample sunlight.
I have a budget of 150k for performing this remodel.
This is the rough idea/imagination of how I want it to look.

Would like to understand how I can best remodel this to achieve my requirements within my budget.
Also is this something which is achievable within the budget or am I dreaming?
Regards,
Rakesh Shetty