Hi All.
We've just purchased a house and we'll be getting the keys in December.
I'm fishing for tips, ideas and advice for a home reno. What mistakes have you made that we should avoid?
We don't have to move in for a few months, so we're planning to DIY as much as we can, such as painting, floor sanding, ripping up carpets, etc.
Looking at our plans, do you have any nifty ideas?
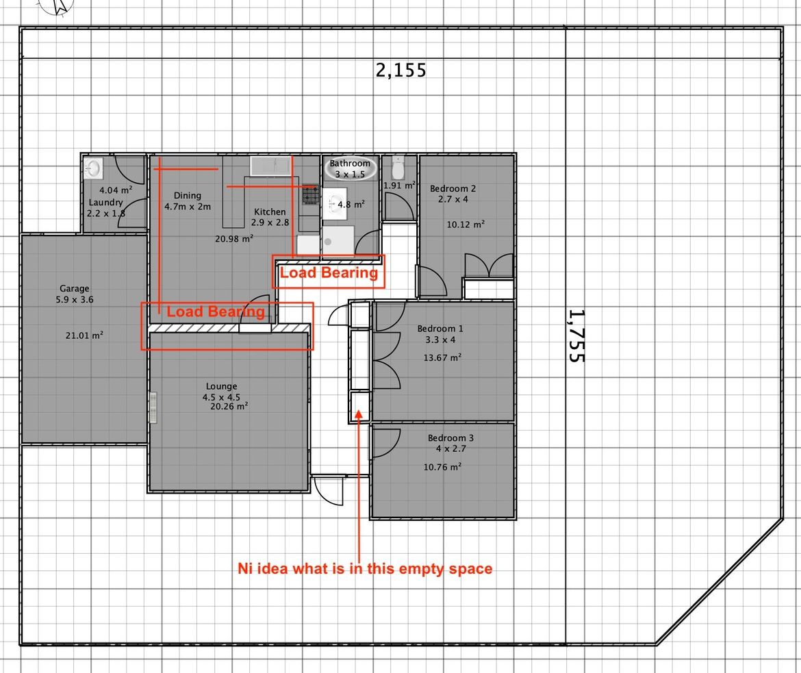
To the right of the plan is a main road. The bottom is a side road. The left and top are neighbour boundaries (The garage is connected to the neighbours garage)
We want to keep the budget as low as possible, maybe 50-60k (Includes garden and new fence to soundproof the main road.
One day, we'd like to be able to maybe extend and add an ensuite and a walk in robe if we can. We want to keep it as minimum 3 bedrooms.
Any nifty ideas on how to add a 2nd ensuite bathroom in the existing space (my guess is the floor area is a little small for this).
We're thinking to maybe knock down the wall between living and dining/kitchen (it is load bearing though).
Any tips for the kitchen area? (Currently there is no dishwasher)
Regards
Itai
Hi @Itai - congrats on your home purchase and your enthusiasm for renovating 🙂 My first piece of advice would be to live in it for 6 months before you start renovating. Probably not what you want to hear, but it’s always a good idea to live with the light and the space before you start expending money on changes, cheers Deb 🙂
Thanks @Mathy. Yes, I get that advice a lot 😋 ... It's good advice, but there's a catch for us.
If we live in it for 6 months, we won't be able to move out to renovate. But conversely, because we are staying in a family apartment at the moment, we can stay in that apartment for as long as we want before we move in. Plus, I have to take leave over the December period, so want to do as much as I can in that time ... painting, flooring, etc.
But I definitely agree with the sentiment, and I plan to camp out there for a few days sussing it up before we do any work. Extra bathrooms, etc would come much later when the budget allows, or unless we simply buy another place.
The only major changes I'd look at are potentially knocking down that wall (Doesn't need to happen now), and revamping the kitchen workflow with some new flat pack stuff (which might make knocking down that wall counter intuitive). Or I might leave it as is and simply paint.
Hi @Itai - well you are blessed 😂 I’ve never had the luxury of not living in the middle of a renovation, be it, major or minor. I think the worst was 6 months (including winter) with my partner, 2 dogs and 4 cats living in 3 rooms without a kitchen. Good luck with your project, cheers 🙂
Yes very lucky! Hence we want to be able to use the opportunity 🙂
Congratulations and good luck with the renovation project @Itai. We are looking forward to seeing how you transform your home. I'm sure the Workshop community will be more than happy to provide as much advice as possible along the way.
For some information and inspiration to get started, you might like to start with these resources:
Hope that helps,
Jason
@Itai
Here's my advice...
I'd recommend you post separately about each room you want to tackle. Eg post some photos of your kitchen and talk about any ideas you might have for your kitchen, and ask for ideas and opinions etc. Then do the bathroom, etc... People here on Workshop are really helpful but the more specific you are about what you need help with, the better the advice you'll get. The amazing @redracer01 might even create some 3D kitchen or bathroom designs for you!
In one huge post like this people get a bit overwhelmed and don't know where to start and/or how to help.
Congrats @Itai - exciting times! Lots of potential here and I feel like your budget will take you a pretty long way if you do a lot of DIY. Looking forward to seeing how I/we can help. Like @Kermit said, separate posts for each room would be helpful.
Where is the house?
Hi Itai, I did exactly what you’re doing only it was five years ago. Before I moved in I decided to prioritise and get the house safe and structurally sound. Got a builder in the straighten the roof and remove awnings that we’re making the house dark, then an electrician to rewire and a plumber to get rid of any galvanised piping. I then renovated the kitchen and painted the entire inside of the house by myself. I stupidly had the timber floors sanded next, should have left that till after the painting. I then moved in and had the bathroom renovated as I lived in it and it wasn’t too bad.
I now have a light filled clean and gorgeous little house!
Thanks for joining in the discussion @kpike. It would be great to see some before and after photos of your renovation to see what you achieved. I'm sure Workshop members would find it very inspiring.
Welcome to the Workshop community. We're really pleased you could join us and look forward to reading more about your projects and plans. Feel free to post anytime you need a hand or have something to share. We have loads of like-minded members happy to roll their sleeves up and have a go.
Thanks @Jason
Already started watching the Bunnings series 🙂
Thanks @ProjectPete & @Kermit That's a good idea about posting the rooms separately, as it does seem confusing with that long list of images.
I think as I tackle smaller spaces and becoming more specific, I will begin to do that.
I was hoping in this one to give people a general feel for the overall home.
Once we're ready to tackle the kitchen and stuff, that will definitely require it's own posts. Bedrooms will be relatively easy I guess 🙂
Thanks @kpike. Good tip on doing the sanding after painting. Was the sanding and coating the floors difficult? Any tips for that part?
When you say you removed the awnings, are you referring to the shade cloths over the windows?
Also, how did you know you had galvanized pipes and needed rewiring? I assume those two didn't come cheap?
I got a tradesman in to do the floors, cost about $2k. I gutted the kitchen area myself (dirty filthy work!😂) and had to get an electrician out to ‘secure’ the bare wires after the switches etc were removed and he told me it had to be re done based on the colour of the plastic covering on the wiring. Cost about $2.5k. The house was built in 1968 so only gal pipe was used. I can get under my house and could see the typical old grey looking pipes, however some new piping was in place so had it partially removed. The water pipes from the water metre to the house had thankfully been done but only found that out after I got the plumber in. Cost about $3k. Check your pipes that drain your bathroom as well. When the bathroom was done the pipes that drain the water were galvanised, however they were in good order so a problem for a later date one day but not now. Drains freely. The problem with galvanised pipes is that they rust from the inside until they get so bad minimal or no water will come through or drain.
Happy to help! Oh by the way, if I can do it, you can do it. I started 5 years ago and am still completing the outside painting of the house. I’m 61 now, live alone and work full time. You’ll have no problem 😊
Hello @Itai
@Kermitis correct there is a lot to talk about, but we need a place to start. Thank you @Kermit for the shout out. I suggest the following.
1. Do you wish to have a running theme for your renovation? Hampton look? Modern? Vouge retro modern retro?
2. I suggest to begin in the kitchen.
3. See suggestion number 1.
Check google for the look your after. When you find one post a picture of the look and feel. We can then make more suggestions. But in the mean time enjoy these pictures.
Tadah! Dishwasher! I personally like the tiles.Remove the tall units and move to oposite wall.Yes that island is appoximately 2.2 meters long and will fit the room! It will work with or without the dividing wall to your living room.18mm finishing panel, 600mm base cabinet, 900mm base cabinet, 600mm 3 drawer base cabinet, 18mm finishing panel.600mm pantry, 600mm oven tower, 800mm fridge space, yes you can have a 900 space if needed.Layout is based on 4900x4700 total room dimensions as indicated on your plan. All apliances are measured to actual live products. These are common sizes but not absolute, please refer to manufacturers specs upon purchase.
Thanks @kpike
I went to the house the other day. I think it might be galvanized based on a photo I took of the main water line cutoff. However, the pipes are all flowing beautifully ... so perhaps I still have more years on the pipes. It'll be a big job to do, as there is no under house access unfortunately.
And thanks for the words of encouragement 🙂
Hey @redracer01
It's a good point. My wife and I haven't discussed any specific looks yet. Just been saving photos of stuff we like on Houzz, pinterest, etc. But we're only getting started. Is there a good guide as to what the different house themes are? (When I first saw Hampton, I thought they meant the suburb in Victoria 😀 )
It's a good idea with beginning in the kitchen. Though that said, as we haven't lived in it yet, we don't know if we should or shouldn't revamp the kitchen up front. The common advice has been to give it 6 months. Though it would be nice to do this all when we don't live there.
That's a really cool kitchen layout, thanks for sharing that. Would that work though where the oven and fridge is if that's a thuroughfare to the backyard / deck (to be)? We were maybe thinking that if that wall was opened, that would be where dining goes? I'm not sure the lounge area is big enough for dining + lounge. What do you think?
I think one thing we will do up front is knock down that centre wall. We've had quite a few people walk through the house and agree that wall should go.Thanks
If they’re still flowing freely then it’s all ok. Even if things changed in the distant future, plumbers have a way of overcoming these things in ways we wouldn’t even think of.
Good luck and I’ll try to get some ‘before photos’ off my Otis iPhone to show you when I get a moment. Renovating builds confidence in yourself, you’ll love it when it’s done! 😊
Thanks for the advice @kpike 🙂
hlo
Here are some tips for your home renovation
And these things you need to avoid while renovation
and there are also lots of thing to avoid while renovation so its difficult to you to tick all the boxes and it will be easy to you hire a professional budget interior designer for your work. Interior designers make interior spaces functional, safe, and beautiful by determining space requirements and selecting decorative items, such as colors, lighting, and materials. They read blueprints and must be aware of building codes and inspection regulations, as well as universal accessibility standards. designer work with furniture, “soft” furnishings like fabrics and rugs, accessories and colors to pull together a room or an entire house.
and you need not to worry about the mistakes and according to my views depanache interior designer can do your work on budget because they renovate my cousin house last year on a descent budget and they are cheap and best interior designers in bangalore
hope , you like it
Thanks for joining in the discussion @rohitsingh. I'm sure @Itai appreciates the tips.
Welcome to the Workshop community. We look forward to reading all about your own projects and plans.
Hi @rohitsingh
Thanks for the tips. Definitely all things we are looking at for the Reno 🙂
Impulse buying is definitely my weak point ... but other than buying some garden tools, I think I'm doing ok! 😉Regards
I'm glad you found the Bunnings Kitchen Planner! My only suggestion at this point is to grab some large boxes a tape measure and some chalk. This will give you a better idea of dimensions and where things will stand in. I saw your drawing for your kitchen excellent work!
Hey All. I've been thinking about the 3rd bedroom which will become a childs bedroom one day, and whether I can eat into that space to make an ensuite. Take a look at these designs compared to the original and let me know what you think? (It pretty much removes 1m from the length of the room from 4 to 3m. Then there is still a wardrobe inside this, so pretty much 2.5m)
Also keen on your thoughts as to what I've done with the wardrobe in the master. I've pushed it ~60cm into the room (making the room go from 4m wide to ~3.3m wide) to turn it into a walk in wardrobe. The current planned wardrobe is around 2.6m wide, but this would add another 60cm to the ends, so would turn it into around 3.8m of Wardrobe space. Does this make the room too cramped, or do you think that the left over space would be easy to work with?
ThanksItai