• Whole of House
  • Kitchen
  • Bathroom and Laundry
  • Living and Bedroom
  • Garage and Shed
  • Outdoor
  • Garden
  • Featured Projects
  • How To
  • Top Ideas
  • Best Advice
  • About Us
Workshop
cancel
Turn on suggestions
Auto-suggest helps you quickly narrow down your search results by suggesting possible matches as you type.
Showing results for 
Search instead for 
Did you mean: 
Ask a question
Share a project
Sign in
Join Workshop
  • Bunnings Workshop
  • >
  • Albums for Community
  • >
  • Images in Public (puttputt)
  • >
  • My Images for puttputt

My Images for puttputt

My Images for puttputt

  • Albums
  • All images
Image Options
  • Flag Image for Review
  • Bookmark
  • Subscribe to RSS Feed

Album: Public (puttputt)

by puttputt
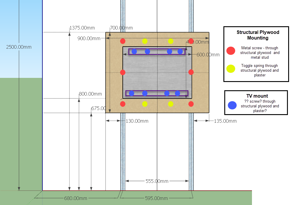
puttputt_0-1767531689504.png
TV Mount plan1.png
TV Mount plan1.png
TV Mount plan template.png
TV Mount plan1.png
Previous
TV Mount plan1.png
Next
Added Tuesday
0 Likes
Like
Posted in: Re: How to mount a TV and shelves to metal studs - ( Tuesday )

You must be a registered user to add a comment on this image. If you've already registered, please log in. If you haven't registered yet, please register and log in.

  • Comment
Workshop Resources
  • Contact Us
  • Rules of participation
  • Terms of use
  • Privacy
  • Workshop help
Our Sites
  • Bunnings Australia
  • Bunnings New Zealand
Quick Links
  • Register
  • Sign in
Go to Bunnings