The Bunnings Workshop community can help with your home improvement projects.
Hi, we’re about to start the planning for our first bathroom renovation. We’ve got two young children so hoping to split the bathroom into two separate spaces. Natural lighting is very limited so we think we will add a wall between the current toilet and the shower, leaving the sliding door to room with the bath for the family bathroom. The other bathroom will Become a proper en-suite and have a toilet added. In all the examples I’ve seen the toilet seems to always to be next to the shower, is there a reason? Could the layout be toilet, Vanity, shower? Would love any tips or advice!
Welcome to the Bunnings Workshop community @shadeli. It's great to have you join us and many thanks for sharing your project.
You might like to share the measurements on the plan and possibly sketch up your desired layout. This will provide our members with a better understanding of what you might like to achieve. They'll then be able to assist with possible layout alternatives and solutions.
There is no particular reason why a toilet needs to be next to a shower. You'll find in most cases people will try to keep the toilet/sink in the same position. A renovation gets exponentially more expensive if you need to relocate plumbing to a completely different location.
You might like to check out some of these discussions for inspiration:
You should also find these articles helpful:
We look forward to hearing more about your project and following along with the build. Let me mention @redracer01 to see if he has some ideas about potential layouts.
Mitchell
Here’s the floor plan with measurements. I’m working on doing a mock up now. Thanks!
Hi @shadeli,
Many thanks for the additional plan with measurements. How did you go with creating the mockup?
I'm looking forward to seeing what you had envisaged for the area.
Mitchell
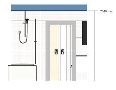
Here's what I have so far.
Hi @shadeli,
Many thanks for updating with your plan and it looks fantastic.
One of the first things I noticed in the ensuite is that you are removing one of the basins, the toilet is swapping to the other side and the shower is being bumped over. Apart from the makeover you are removing one element (the dual sink) and don't seem to be gaining anything. It might just be the plan but the space you have allocated for the shower appears to be around 600mm wide. I would have thought the plus side to removing the extra basin it that you could have a lovely over-sized shower.
I'd encourage you to minimise the gaps in between the toilet, vanity and shower wall to create the largest shower possible.
Below I've shuffled things over to show what I mean. I would be aiming for at least a 1000mm wide shower as it will be far more impressive/functional than empty wall space. I'd be inclined to have the shower where it is and incorporate the toilet area into its footprint also.
Mitchell

Hello @shadeli
I suggest closing off the second bathroom totally. It makes it a self contained bath/shower area for the kids as you suggested. But instead of closing off the toilet with the second bath, I suggest closing off the en-suite and keeping the toilet in that main shower area. The second bathroom can have its own toilet and not compromise the size of the main bathroom. Have a look and tell us what you think. Good luck, stay safe.
Cheers,
Red
The childrens bathroom.
My apologies it was later on that I realized that the bathrooms dont line up. Not to worry it is still based on sizes that you've indicated.
I am a Bunnings team member. Any opinions or recommendations shared here are my own and do not necessarily represent those of Bunnings. Visit the Bunnings website for assistance from the customer service team.
Hi @redracer01,
That's a fantastic design which I trust @shadeli will find of inspiration.
Many thanks for sharing as always.
Mitchell
Thanks so much for the suggestion - it never occurred to me to move the shower against the far wall and move the existing toilet. Excuse my ignorance but is it a big difference in plumbing a toilet compared to a shower?
We’re also really keen to keep a bath in the family bathroom as our kids are 2 and a newborn. There’s a lot of bath time in our future!
If we do block the family bathroom completely as in this sketch there will not be No natural light at all in that bathroom. Do you think that’s ok?
Hello @shadeli
You have 2 alternatives to the natural light issue. One is a natural skylight and the other one is a solar panel skylight. You may google it to see the difference, I shall place pictures of the products below. I suggest getting the services of our In home bathroom renovation designer. They will come to your home and make an estimate of the renovation you wish to make. Pass by the nearest Bunnings store in your area and see if they offer this service. They can then give you a more concrete quote on moving and adding a toilet and anything else you may wish to have done. As for the bath time, I will post a new drawing with your bath placed in, instead of a shower in my next post.
Cheers,
Red
Don't forget this one. It is super important to install one in each bathroom.
I am a Bunnings team member. Any opinions or recommendations shared here are my own and do not necessarily represent those of Bunnings. Visit the Bunnings website for assistance from the customer service team.
Workshop is a friendly place to learn, get ideas and find inspiration for your home improvement projects
We would love to help with your project.
Join the Bunnings Workshop community today to ask questions and get advice.