The Bunnings Workshop community can help with your home improvement projects.
Hi all,
After getting such wonderful input on our kitchen plans I thought I'd throw out to the community again. One of the things we are toying with is whether there is any capacity to fit a WIR in our master bedroom. It's more of a 'nice to have' rather than 'must have but it seems to add a bit to the resale price. There may be some scope to change the layout of the laundry and ensuite to fit this but not sure if we are just trying to fit too much in and would end end up with small squished spaces, a lot of work and not much payoff. Any thoughts on whether it may be possible to incorporate this would be great!
Welcome back @JessMiller15. We're here to help so keep those questions coming.
I'm sure you'll get some suggestions from @redracer01. That's just the kind of puzzle Red likes to solve. I'm hoping @2Belindas might be able to share her wisdom too.
Jane
Hi @JessMiller15,
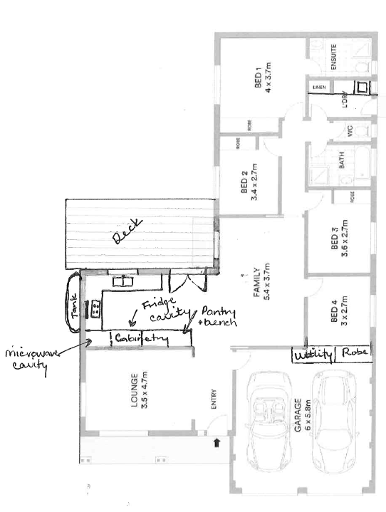
What is the size of the current wardrobe and do you believe it would take up too much of the room if you installed a partition wall as per my image below? I would suggest that keeping the current size of the ensuite would hold more value to the property than a Walk-in robe. I'm sure there are many people out there considering removing a walk-in to make their en-suite larger. Like you've mentioned, it's a nice to have item, but I would be hesitant to compromise the functionality of an en-suite because of it.
There is a tonne of solutions for fitting out a slimline walk-in wardrobe and making maximum usage of that space.
You should find these guides useful:
I look forward to following along with your project. Please let me know if you have questions.
Mitchell

Hello @JessMiller15
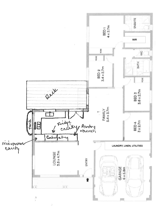
After much deliberation I would like to suggest the following re-arrangement.
1. Move the entire laundry area to the garage. Turn your current laundry space in to your WIR.
2. There is enough space in the garage to house the laundry, linen and utilities.
I've redone your floor plan to reflect the suggestions please have a look and tell me what you think. I have thought about expanding your current wardrobe area and it is just too ungainly both in shape and size to justify the effort. Better to move one of your rooms out to convert. But these are just suggestions tell us what your thoughts are. Oh and I've placed a door at the garage so that you still have access to the washing line outside.
Cheers
Red
I am a Bunnings team member. Any opinions or recommendations shared here are my own and do not necessarily represent those of Bunnings. Visit the Bunnings website for assistance from the customer service team.
Workshop is a friendly place to learn, get ideas and find inspiration for your home improvement projects
We would love to help with your project.
Join the Bunnings Workshop community today to ask questions and get advice.