Workshop
Ask a question

The Bunnings Workshop community can help with your home improvement projects.

Owner-builder reno & extension project

Adam_W
Workshop Legend

Owner-builder reno & extension project

Well after months of delays due to everything from weather to design changes to me breaking my leg on-site… (yes, still in plaster…) we finally have our floor framing in!!!
This is the biggest stage of our owner-builder reno & extension project.
Most of this will be deck & undercover outdoor entertaining space but it will also include a purpose-built home-office (far end on the right) & new master bedroom (left above pool).

We used steel for the floor framing for ease of build – cost is slightly higher but you gain on speed of assembly and virtually zero wastage. It's also a lot stronger so avoids the traditional bearer & joist multi-layered arrangement although I did have them add sub-bearers in a couple of spots.

Can’t recommend SteelMax highly enough. You basically send them the plans & then you get everything on the back of a truck pre-cut, all you have to do is match the bits up & put them together like a giant Meccano project. They can do everything from decks to entire house floor frames.
I'll keep you updated as we progress!

IMG_0910 (1).jpg

Jason
Community Manager
Community Manager

Re: We have lift-off!

Wow, looks like a fantastic project @Adam_W. Looking forward to seeing your progress. 

 

Hope the plaster comes off soon...

 

Jason

 

See something interesting? Give it the thumbs up!
MartyH
Amassing an Audience

Re: We have lift-off!

Have you got plans you could share @Adam_W?

 

I'm particularly keen to see the office layout. 

 

Are you going to have a slide down from the deck to the pool? :crazy:

Re: We have lift-off!

I'll post some plans a little later @MartyH

The office layout will be determined as we finish the space. I plan to have a custom corner benchtop made for the actual 'desk' as I like having loads of benchtop space. Probably need to talk with a local kitchen supplier for that.
A slide... in our daughters dreams :smile:
Funnily enough though we do have enough deck space on the other side to put one in so it has been discussed they are just absurdly expensive. Might get the essential stuff done first.

Jason
Community Manager
Community Manager

Re: We have lift-off!

How's the project going @Adam_W? It would be great to get an update when you get a chance. Any lessons learned so far?

 

Jason

 

See something interesting? Give it the thumbs up!

Re: We have lift-off!

The big lesson @Jason is don’t break your leg on-site the day before the first concrete pour…

But anyhews… the biggest thing for me has been planning to get everything available at the right times. Because of the scale of the job it’s not like you can just whip out & pick up the amount of gear you need so biggest tip is give yourself enough lead-time.
We're looking at windows & doors now & that’s more complex than you might think (and costly…) taken a couple of weeks of planning to get them sorted & then will take a few weeks to make so need to allow time for that. And make sure you order insect screens with your windows. Works out heaps cheaper in the long run.

A huge moment was getting the stringers in for the main stairs from the deck to the pool area & then putting some temporary treads on them.
It’s the first time we’ve had direct access from the house to the pool!
And… it meant that I got all my measurements & set-out right as the off-the-shelf stringers were exactly the right size & fit !

Gotta’ love that :wink:

IMG_1065.jpgIMG_1066.jpg

Re: We have lift-off!

Hey @MartyH, just realised I never shared any plans with you! My Bad.
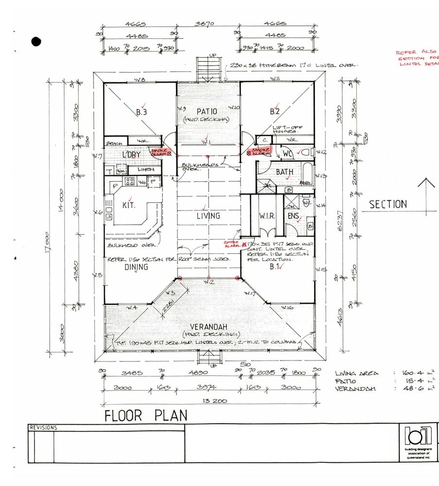
Ok... first one is a copy of the original plans from when the house was built as a holiday home in 1999.
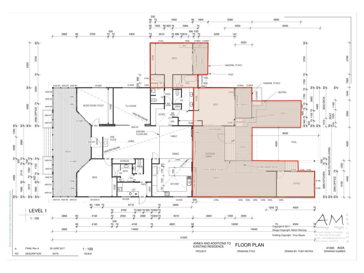
Second one is the new plans with the new build section highlighted. You can compare the internals to see what we are renovating too. Ignore the window locations etc in the new section. The designer was being a bit crazy with window numbers and types.

Third one is the office layout I've arrived at. This doesn't include stuff like bookcases, just fixed items.
We have no idea how far we'll get with our plans. Well, we do... as far as we can before the money runs out... but we've planned it so that each section is an individual project meaning we won't have loads of stuff torn apart at the same time & if we have to stop for a while we can do so without living in a total disater area.

original.jpgnew.jpgoffice.jpg

MartyH
Amassing an Audience

Re: We have lift-off!

Looks awesome @Adam_W, thanks for that. 

Re: We have lift-off!

Update time!
Well, we have our HardieDeck down for the exterior areas & Structaflor down for the interior.
Posts are up, framing will be starting soon & the windows & doors have been ordered. Very exciting :smile: And scary :shocked:

And a tip for anyone planning any big projects at the moment... all the suppliers I'm talking with are telling me they are really busy this year so if you want to get something finished before Christmas order now!

 

 

IMG_1193_02.jpg

 

 

Re: We have lift-off!

Okay peeps! Time for an update.
Despite nearly 350mm of rain in the last 2-weeks we've managed to make some progress. Naturally the rain started as soon as we took the roof off... Yes... some serious water damage to internals that we hadn't planned on replacing...
Frames are up. Crane coming this week to lift large beams in & then the roof can go on!

 

IMG_1336 (1).jpg

Why join the Bunnings Workshop community?

Workshop is a friendly place to learn, get ideas and find inspiration for your home improvement projects