Workshop
Ask a question

The Bunnings Workshop community can help with your home improvement projects.

Ideas to renovate 70s kitchen

woolfj
Growing in Experience

Ideas to renovate 70s kitchen

IMG_1313.JPG

Isobel
Amassing an Audience

Re: Ideas for kitchen design to renovate old 70s kitchen

Would you consider removing the window @woolfj? It would be a shame not to be able to look out the window while you're washing the dishes, but it would help with the lack of storage space. Skylights can be a fantastic option. 

MartyH
Amassing an Audience

Re: Ideas for kitchen design to renovate old 70s kitchen

Perhaps you might like to share a sketch of your house layout. I think you should consider removing a wall or two. Kitchens are such a key room in the house these days and yours does currently look a bit tight. It would be a shame to spend big money on a reno and then still be unhappy with lack of space and/or storage.

woolfj
Growing in Experience

Re: Ideas for kitchen design to renovate old 70s kitchen

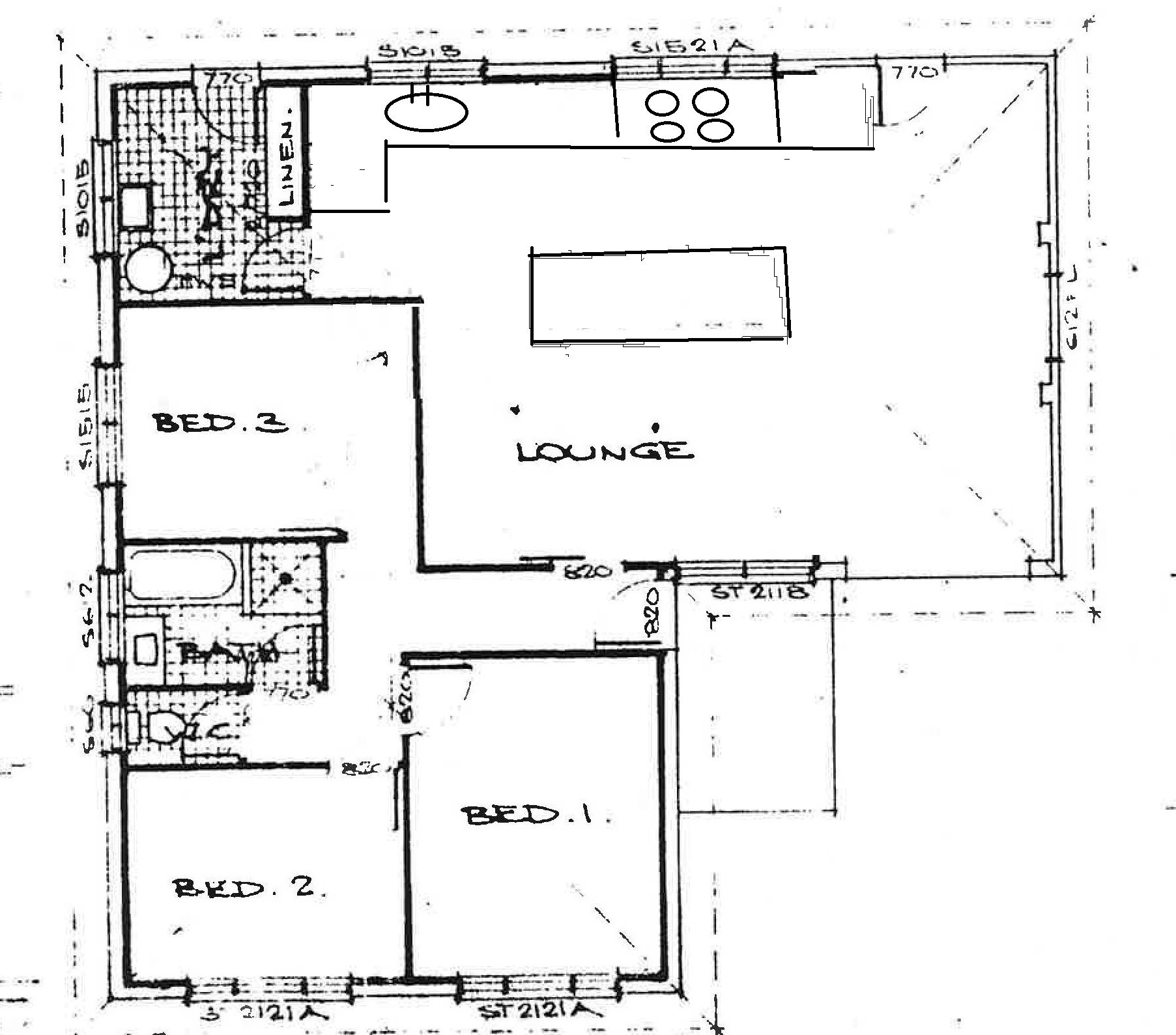
house plans attached - garage has been converted to living area so lounge/dining/garage is one big open area now (the plan attached needs to be mirrored if that makes sense!!)  Laundry faces north.  Yes the kitchen is a  tight area thats why I'm looking for ideas. Want to move the kitchen bench as close as possible to the dining room windowHouse plan original V2.jpg

Re: Ideas for kitchen design to renovate old 70s kitchen

Love a good reno challenge! 

 

I would certainly be investigating removing walls as you could really benefit from opening up the space, both for the kitchen/living area and bedroom 3. You have plenty of room for a good sized kitchen and a large island bench. I would put aside the idea of a formal dining room - most families don't use them anymore. Much better to have a flexible open space that includes the kitchen.  

 

KitchenPlan.jpg

woolfj
Growing in Experience

Re: Ideas for kitchen design to renovate old 70s kitchen

Thank you. Will have a good look at this idea - one problem is the dining window is too low for the kitchen bench to go across underneath. WIll have to get advice as to whether the removal of the kitchen/lounge wall is a weight bearing one or not. Please keep the ideas coming.

Re: Ideas for kitchen design to renovate old 70s kitchen

Changing or replacing the windows would not be a big deal @woolfj.

 

In fact you could do something like this which would be very effective:

 

window3.jpg

window1.jpg

 

window2.jpg

woolfj
Growing in Experience

Re: Ideas for kitchen design to renovate old 70s kitchen

thank you - will talk to a builder now and get an idea on costing
MartyH
Amassing an Audience

Re: Ideas for kitchen design to renovate old 70s kitchen

Thanks for sharing the layout. Fantastic that you took that wall down and reclaimed the garage as living space. I do reckon you should go a step further and open it up further so you have more room and options for the kitchen. Even if you don't plan on staying in the house forever it should pay dividends when it comes to selling. 

woolfj
Growing in Experience

Re: Ideas for kitchen design to renovate old 70s kitchen

Hi Jason - are you able to give me the dimensions and a plan of the kitchen etc that Bunnings purchased and then renovated please. It looks a little wider than ours and thats my problem.

Jason
Community Manager
Community Manager

Re: Ideas for kitchen design to renovate old 70s kitchen

@woolfj,

 

I will ask the team what they have and get back to you as soon as possible.

 

Thanks,

 

Jason

See something interesting? Give it the thumbs up!

Why join the Bunnings Workshop community?

Workshop is a friendly place to learn, get ideas and find inspiration for your home improvement projects