The Bunnings Workshop community can help with your home improvement projects.
Hi Guys
We are on a limited budget and renovating a small 2-bedroom one bathroom cottage. The kitchen is now stripped out and i need to plan a kitchen layout.
rear wall with window is 2700mm with 450mm wall on left of window and 400mm wall on the right side.
Right wall is 2500mmm long
Left wall will have the doorway filled in and can ne up to 3500mm long (3750 to door opening)
We would like sink under the window, and room for a dishwasher.
stove top with oven underneath and range hood on left side
Right side room for large fridge and pantry
Solved! See most helpful response
Hi Eric thank you so much for the list is it possible to get a list for the first kitchen so we can cost up options please
Hi @Flash66
Here is the cabinet list for the first kitchen.
The microwave and book cabinet are custom made using the same timber panel as the second kitchen. The free-standing island/meal table will have to be built by your kitchen installer. The first kitchen design can also be quoted by the In-Store Kitchen Expert. Just make sure to bring the measurements of your walls so they can use it as a reference.
If you need further assistance, please let us know.
Eric
Hi Eric
Iam about to go ahead now and my electrician has requested the dimensions, distance from wall to cooker so he can plan for the power points.
He has also asked if the dishwasher could go next to the sink, if possible, can you assist please.
Hello @Flash66
My apologies for the late reply. Can you please double check the wall sizes I've posted of your kitchen below? I'll be redrawing your kitchen with the dishwasher near the sink. I'll post the revamped drawing as soon as I am able.
Eric

Hi Eric
Yes the dimensions are correct I need to work out the distance from the wall to the cooker and if the dishwasher can fit on the sink wall area
Hello @Flash66
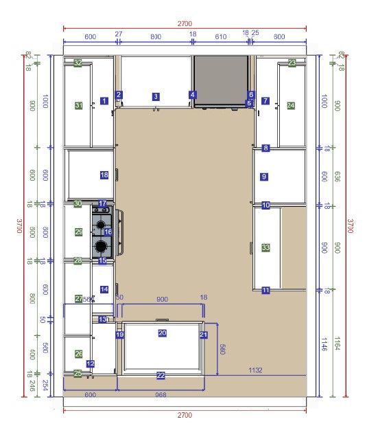
I've redrawn your kitchen in the Kaboodle 3d planner and have placed the cabinet layout below. The floor plan has the cabinet sizes indicated which should enable you to get a good estimate where the utilities need to go. Please note that the plan doesn't include the custom sized timber cabinets for the microwave and the books. I've also place some basic 3d renders to give you an idea of the layout.
Please note that this plan is based on the measurements you've given me, I recommend giving yourself a bit of leeway when locating the utilities so that they will not run into the vertical panels of the cabinetry.
If you have any other questions I can help with, please let me know.
Eric
Workshop is a friendly place to learn, get ideas and find inspiration for your home improvement projects
We would love to help with your project.
Join the Bunnings Workshop community today to ask questions and get advice.