Workshop
Ask a question

The Bunnings Workshop community can help with your home improvement projects.

How can I improve my pergola design? Feedback on my drawings appreciated

rbouadjenek
Getting Established

How can I improve my pergola design? Feedback on my drawings appreciated

Hi everyone,

I'm currently designing a pergola to attach to my house and I've prepared some drawings which I’ve attached here. I’d really appreciate any feedback or suggestions you might have.

I’d love your thoughts on:

  • Whether the placement and structure look correct

  • If there's anything I may have missed

  • And importantly — do you think I’ll need to get these drawings certified by a professional (e.g. engineer or building designer) to obtain a building permit?

Thanks in advance for your time and advice!

— Reda

engeenering plan_v0.3_Page_01.jpgengeenering plan_v0.3_Page_02.jpgengeenering plan_v0.3_Page_03.jpgengeenering plan_v0.3_Page_04.jpgengeenering plan_v0.3_Page_05.jpgengeenering plan_v0.3_Page_06.jpgengeenering plan_v0.3_Page_07.jpgengeenering plan_v0.3_Page_08.jpgengeenering plan_v0.3_Page_09.jpgengeenering plan_v0.3_Page_10.jpgengeenering plan_v0.3_Page_11.jpgengeenering plan_v0.3_Page_12.jpgengeenering plan_v0.3_Page_13.jpgengeenering plan_v0.3_Page_14.jpg

EricL
Bunnings Team Member
Bunnings Team Member

Re: How can I improve my pergola design? Feedback on my drawings appreciated

Hello @rbouadjenek 

 

Thank you for sharing your detailed pergola plans. To ensure your project proceeds smoothly, it is strongly recommended that you check with your local council regarding applicable rules and regulations. Since your design involves attaching the pergola to your home, it will generally require a building permit, as it affects the structural integrity of the existing roofing.

 

If, however, you choose to construct the pergola as a free-standing structure, the approval process is often simplified, as it does not involve any direct connection to the house. Additionally, the overall size of the pergola is another important factor to consider. Most councils have size limits for exempt development, and if your design exceeds these limits, it is highly likely that a permit will be required.

 

It would also be prudent to have your drawings reviewed and certified by a qualified structural engineer. This step can help avoid delays or the need for revisions if the council requests formally verified plans during the approval process. Taking these precautions early on can save time, cost, and frustration later in the project.

 

Let me call on our experienced members @Dave-1 and @Nailbag for their recommendations.

 

If you need further assistance, please let us know.

 

Eric

 

See something interesting? Give it the thumbs up!
Nailbag
Home Improvement Guru

Re: How can I improve my pergola design? Feedback on my drawings appreciated

Hi @rbouadjenek 

 

As long as you're covering all the elevations and planning information, then you can submit these yourself. But it appears you will need more site elevations and unground for the posts as I don't believe those post brackets will be suitable. Bolts look undersized and no information on support brackets. Personally I wouldn't bounce back'n fourth for detailed answers in this forum. Instead, since you have done already so much of the ground work, it would be worth a small investment in a draftsperson to complete them.

 

Then I would go in person to your local council and discuss things like the potential for a planning permit due to the positioning of the carport. And of course an owner builders permit. Though you state an estimate build of $7K its what a builder would build it for, not what you can. There is a course and a white card application you will need to complete to obtain this. 

 

Nailbag

Dave-1
Community Megastar

Re: How can I improve my pergola design? Feedback on my drawings appreciated

Good Morning @rbouadjenek 

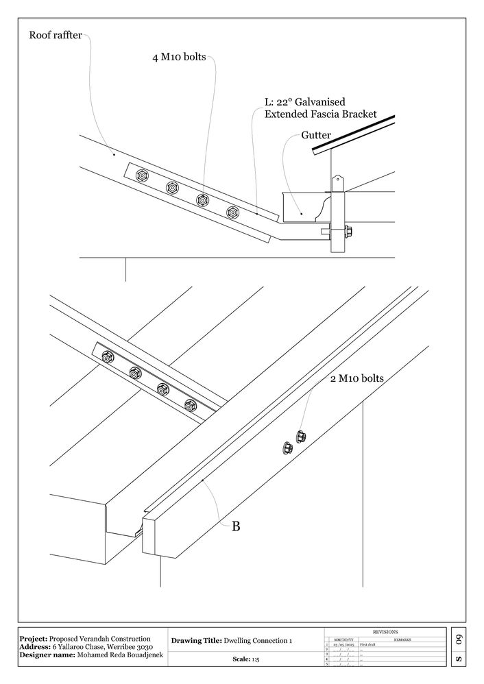
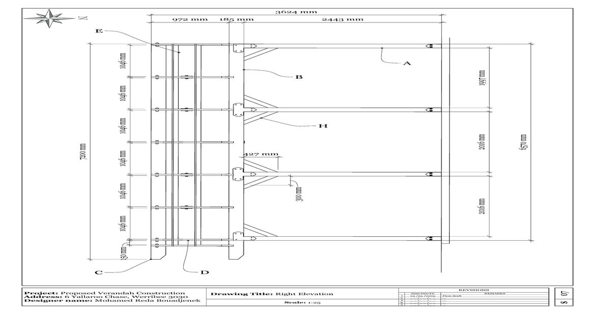
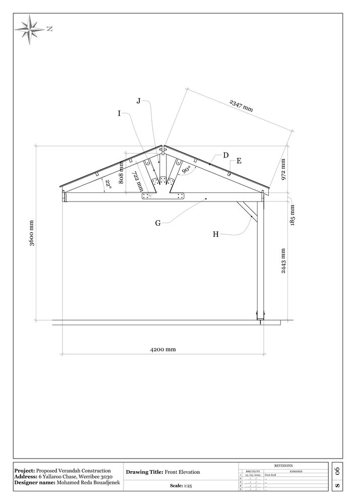
You have some detailed drawings which helps a lot tho The size of the footings of the posts and also the span between the posts are a bit of an issue. Thats a lot of weight to be held up on 4 of 10mm stirrups. 

 

@EricL has a very good point over the attachment to the house compared to a freestanding structure. I prefer a freestanding structure as a gazebo/patio roof it really shouldnt need support to stand alone.

 

@Nailbag also has some very pertinent points. The one that stands out is it is worth having it drawn up by a professional as they will know the design specs of items and the loads they can carry. 

 

Id have a read of your local council rules about how big a gazebo can be, the difference between attachments to the house or freestanding, setbacks from fence lines also come into play. Then revist your drawings and see if they fit what can be done. 

 

Things I keep in mind -

- Length of span, need thicker timbers for longer spans

- Supports, need so many supports to hold the overall weight plus teh anility to stop the structure lifting in the wind.

- Guttering between the existing roof and new structure, we do get a lot of questions about that gap.

- Drainage for the stormwater and where it will go.

- That quote amount that @Nailbag has mentioned, I couldnt find it 😕 However $7k seems to be cheap, possible too cheap for a builder to do it. Yourself possibly but the cost of materials I have found to be higher then what I thought it would be.

 

Dave

Re: How can I improve my pergola design? Feedback on my drawings appreciated

Hi @EricL , @Nailbag , and @Dave-1 ,

 

Thanks a lot for the detailed feedback. I’ve provided responses below to each of your comments — I hope this helps clarify my approach and may also assist other DIYers in a similar situation.

 

▪️ “It appears you will need more site elevations and unground for the posts as I don't believe those post brackets will be suitable.”
🔸 I'm not entirely sure I understand this point.
The post brackets I’ve selected — specifically the Simpson Strong-Tie Concealed Post Base (140–152mm) — are advertised on the Bunnings website as suitable for supporting posts of this size. If you believe they are still inadequate in this context, I’d appreciate any clarification or alternative recommendations.

 

▪️ “Bolts look undersized and no information on support brackets.”
📝 Good point. I will review the bolt specifications and ensure that detailed information about support brackets is included in the updated drawings.

 

▪️ “Instead, since you have done already so much of the ground work, it would be worth a small investment in a draftsperson to complete them.”
👍 That’s a fair suggestion. Given how far along I’ve come, I agree it may be worth engaging a draftsperson to finalise the documents and ensure everything meets submission standards.

 

▪️ “Then I would go in person to your local council and discuss things like the potential for a planning permit due to the positioning of the carport.”
🏢 I’ve already contacted my local council multiple times and confirmed that a planning permit is not required for this structure in my case.

 

▪️ “And of course an owner builders permit. There is a course and a white card application you will need to complete to obtain this.”
📋 I’ve spoken with the council building surveyor, who advised that as long as the structure complies with NCC deemed-to-satisfy provisions, engineering certification is not mandatory. I’ll also look into the White Card and owner-builder course requirements as part of the process.

 

▪️ “Though you state an estimate build of $7K its what a builder would build it for, not what you can.”
💰 I understand the distinction. For reference, my $7K estimate is based on:

Current material prices listed on the Bunnings website at the time of preparing the quote, and

An estimated 20 hours of labour at $50/hour for work I plan to do myself.

If a different cost basis is needed for permits, I’m happy to adjust accordingly.

 

▪️ Length of span, need thicker timbers for longer spans

📐 Thanks for raising this.
The span calculations are already included in my drawings and have been done to ensure compliance with AS1684 (Residential Timber-Framed Construction). I've selected timber sizes accordingly to meet the span tables and structural requirements specified in the standard.

 

 

Thanks again for taking the time to comment — I welcome any further suggestions.

— Reda

 

Nailbag
Home Improvement Guru

Re: How can I improve my pergola design? Feedback on my drawings appreciated

Hi @Dave-1 and @rbouadjenek 

 

That info about the regs around what it would cost a builder to construct the project to trigger an owner builders permit came from my own experience on my last Vic reno. This was initiated about 7ys ago, but though the criteria may have changed, its still there, just not sure the value.

 

Nailbag

Why join the Bunnings Workshop community?

Workshop is a friendly place to learn, get ideas and find inspiration for your home improvement projects