Workshop
Ask a question

The Bunnings Workshop community can help with your home improvement projects.

How to add a toilet and bathroom?

Bijayabaidya
Just Starting Out

How to add a toilet and bathroom?

Hi,

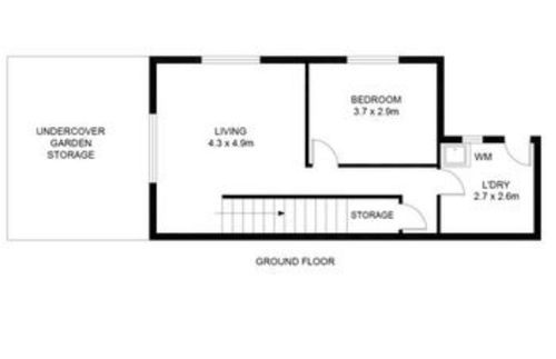
I want to add a toilet and bathroom in my house ideally in ground floor. Any ideas if it’s possible? How much it would cost? Open to any ideas or building extension.

IMG_8078.jpeg

IMG_8079.jpeg

MitchellMc
Bunnings Team Member
Bunnings Team Member

Re: How to add a toilet and bathroom?

Welcome to the Bunnings Workshop community @Bijayabaidya. It's wonderful to have you join us, and many thanks for your question about creating a bathroom.

It looks like you’d have enough room to add a shower and toilet on your ground floor in the laundry area. You could fit a one-metre by one-metre shower in the corner opposite the existing laundry sink, and then position a toilet behind the door on the left-hand side. The current layout seems to have enough space to accommodate both comfortably without needing a full extension. You'd then be able to place your washing machine next to the laundry sink.

 

As for cost, that really depends on a few key factors: the location of existing plumbing, what the laundry floor is made from, and whether the concrete slab needs to be trenched to install new pipework. Labour and material costs can vary widely, so it’s best to get a few quotes from local builders or plumbers to understand what’s involved and what budget to expect.

 

To help you plan things out, here’s a useful guide on how to plan a bathroom renovation: How to plan a bathroom renovation.

Please let me know if you have any questions.

Mitchell
 

See something interesting? Give it the thumbs up!

Re: How to add a toilet and bathroom?

Hi @Bijayabaidya 

 

The one thing that I notice is that the upstairs toilet is not near the lower floor (going on the location of the stairs) so the biggest issue is connecting to the soil pipe. I would recommend getting a few quotes from local tradies and listen to what they say as that will give you an insight to what is actually required. Then base your descision on what they recommend and what you think you can achieve yourself.

Re: How to add a toilet and bathroom?

Hi Mitchellmc,

 

I am thinking to turn up kitchen in to laundry room, do you recommend any recommendations area which is best to add on toilet and bathroom. 

Thank you.

Bj

EricL
Bunnings Team Member
Bunnings Team Member

Re: How to add a toilet and bathroom?

Hello @Bijayabaidya 

 

Turning your current kitchen into your laundry area is possible but it would mean that you would need to relocate the kitchen to the living room. This would be an added cost to your overall toilet and bathroom plan. A lot of the plumbing utilities would need to be relocated in order for the kitchen to be moved to another location. I suggest engaging the services of builder and asking them for a quote on the addition of a toilet and bath along with the relocation of the kitchen.

 

If you have any other questions we can help with, please let us know.

 

Eric

 

See something interesting? Give it the thumbs up!

Why join the Bunnings Workshop community?

Workshop is a friendly place to learn, get ideas and find inspiration for your home improvement projects