The Bunnings Workshop community can help with your home improvement projects.
Hi all,
I am hoping someone will be able to help me out!
Our house is only 13 years old, but our family needs have changed.... and we really need to install a 3rd toilet.
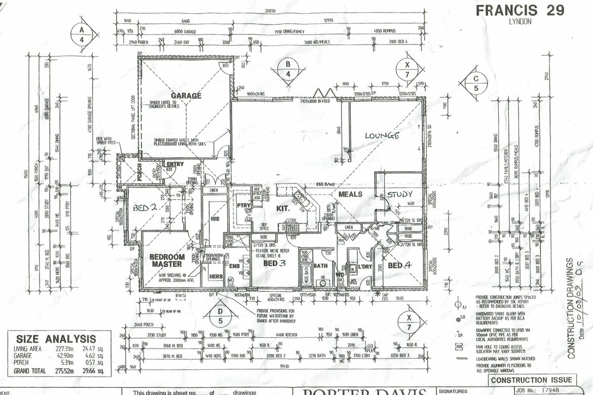
I have attached our house plan as it is at the moment. The house is on a concrete slab.
An option I thought of, would be to move the bathtub out of the bathroom, and install a bathtub into the ensuite. Then we would have room in the bathroom to install another toilet. Thinking to move the door of the WC further out to flush with the passage, so we can add a small vanity unit into the WC.
If adding the bathtub would make the ensuite too cramped, we are quite willing to include the smaller WIR as part of the ensuite.
But am needing advice and assistance in what layouts would work!
Thankyou very much in advance.....
Hello @EricaW,
Thank you for your question on your bathroom renovation. I'm sure our resident D.I.Y. expert @EricL will be able to provide some layout suggestions when he's back on the site later.
In the meantime, let me also tag experienced Workshop member Pete (@ProjectPete) and renovation expert Belinda (@redbournreno) to see if they have any thoughts.
Good luck with your bathroom project. Please do keep us updated as it progresses. Would love to see the final result.
Akanksha
Hello @EricaW
I always find bathroom renovations to be a fascinating opportunity to change the look and feel of the room. Regarding your proposal of moving the bath, it can be done, however, if you are installing it in the ensuite it will have to go into the existing spot where your current shower is. To avoid losing any floor space, I suggest repurposing the bath into a shower-over-bath set-up. In this manner, you get to keep the bath and still have the functionality of a shower.
For the new toilet set-up, I suggest having it face the outside wall so that the plumber can hook it up from the outside by linking it to the existing toilet in the next room. In regards to the bathroom near the laundry, I recommend placing the hand basin opposite the laundry so that the plumber can easily tap into the existing plumbing.
Please have a look at the sample sketch-ups below and tell me what you think. If you are thinking of a major rearrangement of the appliances in the room just keep in mind that the concrete base will need to be cut to facilitate plumbing.
If you have any other questions we can help with, please let us know.
Eric





Thankyou very much @EricL & @Akanksha for replying.
The sketches look great @EricL, but we're not keen on doing an over bath showerhead.......
Would there be room to put the bathtub along under the window in the ensuite, with the toilet along the internal wall?
Speaking of making cuts in the concrete slab.... one builder we spoke to suggested each cut would cost over $700 per cut? Is that accurate?
We are not confident DIYers, but don't want to overspend....
Trying to work out, what or if we can do any of it ourselves.
Hi @EricaW
If you are installing a typical bath size, I believe there is just enough space to move that bath to that location. Unfortunately, concrete cutting is one of the most expensive things you can ask a plumber to do. If you can manage to do the concrete cutting as a D.I.Y. project you'll be able to save a great deal.
When you begin your planning stage, make sure to ask the plumber where they would like the concrete to be cut and how deep the cut should be. Please give me some time to redraw the bathroom and I will post it here as soon as I'm done.
Eric
Hi @EricaW
@EricL suggestions are almost exactly what I would have suggested too.
The biggest consideration is moving the plumbing and disrupting the waterproofing. Either of these is where the cost will rise significantly. Your suggestion of adding the bath to the ensuite and moving the toilet position in there will be very expensive - almost the equivalent of a whole new bathroom in effort. Unless the budget is not much of an issue then I would avoid this at all costs and leave the ensuite exactly as it is (unless you hate it already!).
The lowest cost for the WC is to add the slim vanity unit and box in the drainage to feed out into the toilet pipework. This way you don't need to cut into the floor at all. Alternatively punch through the wall and tap into the laundry sink drain and water supply - this is probably best. Be very careful exactly where you punch through - especially if you have wall tiling in your WC where the vanity will go.
The next question is do you really want to keep a bath? For a family home of that size I would recommend to always have one. Since you don't want a shower over bath in the ensuite then why not have it in the main bathroom? That is your very best solution I believe. This way all the expensive concrete cutting, plumbing, waterproofing and tiling work is restricted to the one area. Put the toilet under the window facing either towards the vanity or towards the shower. Put the bath over shower as a corner setup where the shower is. There are many much nicer bath over shower shapes these days, and a nice shower screen will still allow it to look great.
Best of luck with it.
Hi @EricaW
As promised here are your updated drawings with the bath installed near the toilet. Please keep in mind that the vanity space is conservatively around 1 meter only. I've placed a 600mm wall-hanging vanity to give you an idea of what it will look like with the remaining space.
If you have any other questions we can help with, please let us know.
Eric
Workshop is a friendly place to learn, get ideas and find inspiration for your home improvement projects
We would love to help with your project.
Join the Bunnings Workshop community today to ask questions and get advice.